Reichel Immobilien Bodo Reichel

Herr/Frau Bodo Reichel

Baugrundstücke in Merseburg

€ 61.210
Kaufpreis
669 m²
Grundstücksfl. ca.

Der Anbieter dieses Objekts hat gegenüber der AVIV Germany GmbH als Betreiber dieses Online-Marktplatzes erklärt, nicht als Unternehmer im Sinne des § 1 KSchG zu handeln. Die im Verbraucherschutzrecht der Union verankerten Verbraucherrechte (insbesondere Informationspflichten und Rücktritts- bzw. Widerrufsrechte) finden auf den Vertrag zwischen dem Anbieter des Objekts und Ihnen (dem Interessenten) keine Anwendung.

Gewerblicher Anbieter

Der Anbieter dieses Objekts hat gegenüber der AVIV Germany GmbH als Betreiber dieses Online-Marktplatzes erklärt, als Unternehmer im Sinne des § 1 KSchG zu handeln.

AdresseHoppenhauptring
06217 Merseburg 
Auf Karte ansehen

Preise & Kosten

Kaufpreis € 61.210 Preis/m² € 90

Provision für Käufer

6% des Kaufpreises zuzüglich 19% MWSt

Lage

Beuna liegt ca. 5,5 km westlich des Stadtzentrums von Merseburg und ist verkehrstechnisch sehr gut angebunden. 10 Autominuten bis zum Zentrum; mit Bus und Bahn gelangt man ebenso regelmäßig dorthin. Neue S-Bahn bis Halle/S HBF
Die A 38 ist in wenigen Minuten erreicht und über die B91 bzw. B 181 sind Halle und Leipzig auch...

Mehr anzeigen

Das Grundstück

  • Grundstücksnutzung: Wohnen
  • Bauland ohne Bebauungsplan
  • teilweise erschlossen
  • Erschließungsumfang: Strom, Telekommunikation, Wasser

Details

Objektbeschreibung

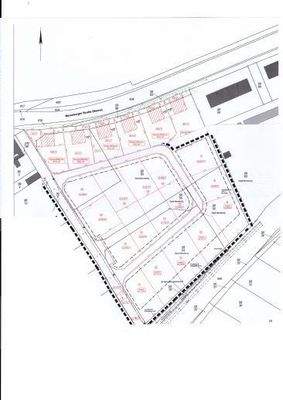
Auf einer brachliegenden Wiese im Ortsteil Merseburg-Beuna wurde ein Bebauungsplan für 21 Baugrundstücke erstellt.
Eine der letzten frei bebaubaren Flächen im Baugebiet
Geeignet für die bauträgerfreie Errichtung von Bungalow sowie EFH mit bis zu zwei Vollgeschossen.

Für die innere Erschließung sowie...

Mehr anzeigen

Weitere Informationen

Ortsstruktur
Merseburg ist eine Kreisstadt mit ca. 35.000 Einwohnern.
Hochschule, Kreiskrankenhaus und Verwaltungssitz prägen die Neuzeit der über 1000 Jahre alten Siedlung.
Die örtliche Infrastruktur ist mit Kindergarten, Grundschule in Geusa und einem weitreichenden Freizeitangebot, auch mit dem nah gelegenen...

Mehr anzeigen

Dokumente

file_pdfB-Plan Nr. 7, 30092019angle_right

Anbieter der Immobilie

Partner

Reichel Immobilien Bodo Reichel

Eislebener Str. 77, 06126 Halle

user

Herr/Frau Bodo Reichel

Dein Ansprechpartner

Anbieter-Website Anbieter-Profil Anbieter-Impressum

Online-ID: 2jr5g5e

Referenznummer: Beuna Verkauf 1

Finde Angebote wie dieses

imageimageimage

Hier geht es zu unserem Impressum, den Allgemeinen Geschäftsbedingungen, den Hinweisen zum Datenschutz und nutzungsbasierter Online-Werbung.