

2CK-immobilien
Herr Christian Karohs
017 ···
Nr. anzeigenPreise & Kosten
Provision für Käufer
3,57% inkl. 19% USt. inkl. MwSt.
Lage
Im Sommer ist für den Strandurlaub die Nähe zum Breeger Boden oder zur nahen Ostsee die Lage ideal.
Genießen Sie lange Abendspaziergänge zum Breeger Hafen, oder entlang der endlos langen Stränden am Meer.
Im Winter erleben Sie die wundervolle Stille, einen vereisten Bodden und die einzigartigen Möglichkeit Ihren...
Das Haus
Kategorie
Doppelhaushälfte
Geschosse
2 Geschosse
Baujahr
2012
Bezug
sofort!
Derzeitige Nutzung
frei
Energie & Heizung
Warum sehe ich diese Anzeige? – Du siehst diese Anzeige basierend auf Ihrer Navigation auf unserer Website und den Suchkriterien, die du verwendet hast.
Energieausweistyp
Verbrauchsausweis
Gebäudetyp
Wohngebäude
Baujahr laut Energieausweis
2012
Wesentliche Energieträger
GAS
Gültigkeit
05.02.2025 bis 04.02.2035
Effizienzklasse
A+
Endenergieverbrauch
22,62 kWh/(m²·a)
Weitere Energiedaten
Energieträger
Gas
Heizungsart
Fußbodenheizung, offener Kamin, Zentralheizung
Details
Objektbeschreibung
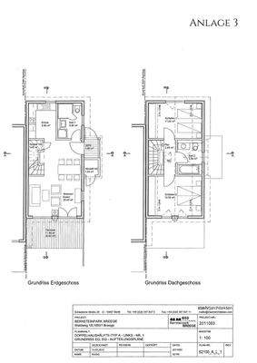
Die in skandinavischer Architektur gebaute Doppelhaushälfte mit dei Zimmern und ca. 78 m2 wurde im Jahr 2012 im sogenannten " Bernsteinpark" fertiggestellt.
Ausgestattet mit einer kompletten Einbauküche, in der es an nichts fehlt, der Fußbodenheizung im EG, einem Kaminofen, zwei Bädern und einem sehr geschmackvollen...
Ausstattung
- drei Zimmer ca. 78 m²
- kurzer Weg zum feinen Ostsee-Sandstrand!
- Sauna
- Whirlpool
- Duschbadezimmer, tagesbelichtet
- Badewannenbad, tagesbelichtet
- Einbauküche inkl. Markengeräten
- Waschmaschine
- Kaminofen
- Fußbodenheizung im EG
- Niederbrennwert-Gastherme
-...
Preisinformation
1 Stellplatz
Weitere Informationen
Sonstiges
Finanzierung:
Unsere Finanzierungsexperten unterbreiten Ihnen gerne ein auf Ihre Bedürfnisse abgestimmtes Finanzierungsangebot.
Ihre Kreditanfragen gehen an über 200 Banken. Somit können unsere Finanzierungsexperten einen günstigen Zinssatz sowie eine schnelle Angebotserarbeitung...
Dokumente
Anbieter der Immobilie
2CK-immobilien
Alt Reddevitz 108, 18586 Mönchgut

Online-ID: 2jrbb5r
Referenznummer: 2025257
Finde Angebote wie dieses
Hier geht es zu unserem Impressum, den Allgemeinen Geschäftsbedingungen, den Hinweisen zum Datenschutz und nutzungsbasierter Online-Werbung.