
Antaris Immobilien GmbH
Frau Sandy Thorwirth
+49 ···
Nr. anzeigenPreise & Kosten
Provision für Mieter
2,38 Monatsmieten vom Mieter
Warum sehe ich diese Anzeige? – Du siehst diese Anzeige basierend auf Ihrer Navigation auf unserer Website und den Suchkriterien, die du verwendet hast.
Lage
Das 5-geschossige Bürogebäude liegt direkt am Stadtring im Zentrum von Erfurt. Der Erfurter Hauptbahnhof sowie zahlreiche Einrichtungen des täglichen Bedarfs, diverse Banken und Behörden sind innerhalb weniger Minuten zu Fuß erreichbar. Ausreichend Parkmöglichkeiten stehen im näheren Umfeld zur Verfügung. Die zentrale Lage...
Büro-/Praxisfläche
Kategorie
Bürofläche
Baujahr
1994
Bezug
sofort
Energie & Heizung
Warum sehe ich diese Anzeige? – Du siehst diese Anzeige basierend auf Ihrer Navigation auf unserer Website und den Suchkriterien, die du verwendet hast.
Wärme
Strom
Energieausweistyp
Bedarfsausweis
Gebäudetyp
Nicht-Wohngebäude
Baujahr laut Energieausweis
1994
Wesentliche Energieträger
Fernwärme
Gültigkeit
05.07.2023 bis 05.07.2033
Endenergiebedarf (Wärme)
107,00 kWh/(m²·a)
Endenergiebedarf (Strom)
36,00 kWh/(m²·a)
Details
Objektbeschreibung
Derzeit steht ein gesamtes multifunktionales Büro- und Geschäftshaus mit insgesamt ca. 5.180 m² Bürofläche zur Vermietung. Die Gesamtfläche verteilt sich auf 5 Geschosse und kann etagenweise oder in ihrer Gesamtheit angemietet werden.
Energieausweis vorhanden: ja
Endenergiebedarf des Gebäudes: 214,50...
Ausstattung
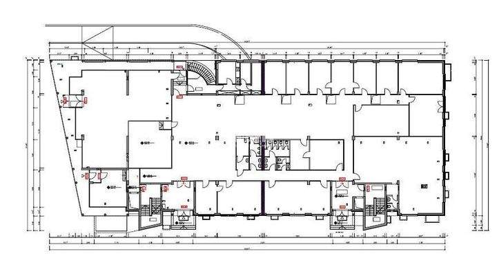
Im Erdgeschoss steht eine Büroeinheit mit ca. 1.310,96 m² zur Vermietung an. Die Fläche setzt sich aus 15 Büros, einer Teeküche, getrennten Sanitäreinheiten sowie einem Behinderten-WC zusammen.
Derzeit befinden sich die Flächen im Sanierungszustand. Spezielle Wünsche bezüglich der Raumaufteilung und Ausstattung können...
Weitere Informationen
Sonstiges
Provision
Der Maklervertrag mit der antaris Immobilien GmbH kommt entweder durch eine schriftliche Vereinbarung oder durch die Inanspruchnahme unserer Maklertätigkeit auf Basis der Anforderung des Objekt-Exposés und der beinhalteten Bestimmungen zustande (siehe auch AGB). Für den Nachweis und/oder die...
Anbieter der Immobilie
Online-ID: 2jryt5u
Referenznummer: P251027/G1/Eh3
Finde Angebote wie dieses
Hier geht es zu unserem Impressum, den Allgemeinen Geschäftsbedingungen, den Hinweisen zum Datenschutz und nutzungsbasierter Online-Werbung.