

Wüstenrot Immobilien GmbH
Herr Sven Hülsen
015 ···
Nr. anzeigenPreise & Kosten
Provision für Käufer
4,17 % inkl. MwSt.
Lage
Willkommen in der ehemaligen Bergstadt Zwickau. Die Stadt an der Mulde blickt auf eine über 900 Jahre alten Geschichte zurück. Zwickau, im Sächsischen auch oft Zwigge genannt, liegt im Westen von Sachsen und ist mit etwa 90.000 Einwohnern die viertgrößte Stadt im Freistaat.
Die Hochschulstadt ist bekannt als wichtiger...
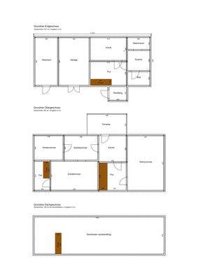
Das Haus
Kategorie
Einfamilienhaus
Baujahr
1910
Energie & Heizung
Warum sehe ich diese Anzeige? – Du siehst diese Anzeige basierend auf Ihrer Navigation auf unserer Website und den Suchkriterien, die du verwendet hast.
Energieausweistyp
Verbrauchsausweis
Gebäudetyp
Wohngebäude
Baujahr laut Energieausweis
1910
Wesentliche Energieträger
GAS
Gültigkeit
bis 21.02.2035
Effizienzklasse
F
Endenergieverbrauch
194,20 kWh/(m²·a)
Weitere Energiedaten
Energieträger
Gas
Details
Objektbeschreibung
Kurzbeschreibung
Schönes Bauernhaus mit großem
Objekt
Zum Kauf steht ein Bauernhaus von 1910, welches sich in ruhiger und dennoch zentraler Lage von Zwickau befindet. Von hier aus gelangt man fußläufig in die Innenstadt. Eine Kita und eine Grundschule sind ebenfalls in wenigen Laufminuten erreichbar.
Das...
Ausstattung
Schönes Bauernhaus mit großem Garten und sehr guter Lage von Zwickau
+ Grundstücksgröße: ca. 864 qm
+ mit großem Garten und Schuppen
+ Terrasse
+ Pkw-Stellplatz-Möglichkeiten
Zum Wohnhaus
+ ca. 1910 erbaut (EG Massiv ca. 55cm dicke Wände, OG Fachwerk ca. 33cm dicke Wände)
+ Großsanierung: 1993/1994...
Preisinformation
2 Stellplätze
1 Garagenstellplatz
Weitere Informationen
Sonstiges
Es liegt ein Energieverbrauchsausweis vor.
Dieser ist gültig bis 21.2.2035.
Endenergieverbrauch beträgt 194.20 kwh/(m²*a).
Wesentlicher Energieträger der Heizung ist Gas.
Das Baujahr des Objekts lt. Energieausweis ist 1910.
Die Energieeffizienzklasse ist F.
Das komplette Exposé mit weiteren...
Anbieter der Immobilie
Wüstenrot Immobilien GmbH
Schandauer Str. 34, 01309 Dresden

Online-ID: 2js2v5z
Referenznummer: WI 55904
Finde Angebote wie dieses
Hier geht es zu unserem Impressum, den Allgemeinen Geschäftsbedingungen, den Hinweisen zum Datenschutz und nutzungsbasierter Online-Werbung.