
Rustler Immobilientreuhand GmbH
Frau Petra Merkader
+43 ···
Nr. anzeigenPreise & Kosten
inkl. Betriebskosten
Warum sehe ich diese Anzeige? – Du siehst diese Anzeige basierend auf Ihrer Navigation auf unserer Website und den Suchkriterien, die du verwendet hast.
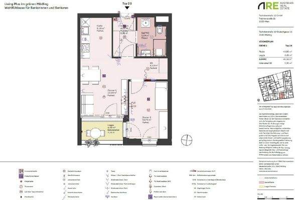
Die Wohnung
Wohnanlage
Energie & Heizung
Warum sehe ich diese Anzeige? – Du siehst diese Anzeige basierend auf Ihrer Navigation auf unserer Website und den Suchkriterien, die du verwendet hast.
Heizwärmebedarf (HWB)
37,00 kWh/(m²·a)
Gesamtenergieeffizienz (fGEE)
0,67
Weitere Energiedaten
Heizungsart
Zentralheizung
Details
Objektbeschreibung
LIVING PLUS - Juwel im Grünen
LIVING PLUS - Juwel im Grünen ist der perfekte Ort für Senioren, die individuelle Privatsphäre schätzen und auch eine lebendige Gemeinschaft haben möchten. Genießen Sie die Vorzüge ihrer eigenen 4 Wände, die auf Ihre Bedürfnisse zugeschnitten sind, und profitieren Sie von einem...
Preisinformation
Nettokaltmiete: 814,15 EUR
Weitere Informationen
Stichworte
Anzahl der Badezimmer: 1, Anzahl der separaten WCs: 1
Anbieter der Immobilie
Online-ID: 2jsct5s
Referenznummer: 141/82442
Finde Angebote wie dieses
Hier geht es zu unserem Impressum, den Allgemeinen Geschäftsbedingungen, den Hinweisen zum Datenschutz und nutzungsbasierter Online-Werbung.