

Spain Homes
Herr Santiago de Cordoba Estepa
+34 ···
Nr. anzeigenPreise & Kosten
Provision für Käufer
Bitte beachte, das Angebot kann bei Vertragsabschluss die Zahlung einer Provision beinhalten. Weitere Informationen erhältst Du vom Anbieter.
Die Wohnung
Kategorie
Maisonette
Wohnungslage
Erdgeschoss
Bezug
Spain Homes
Wohnanlage
Details
Objektbeschreibung
Kurzbeschreibung
In Estepona an der Costa del Sol gelegen, bieten diese Wohnungen mit Naturblick eine ideale Lage in der Nähe des Stadtzentrums und der Golfplätze.
Objekt
Neubauwohnungen zum Verkauf in einem Komplex in Estepona
Die Wohnungen verfügen über große Fenster, voll ausgestattete Küchen...
Weitere Informationen
Stichworte
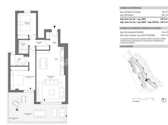
Carport vorhanden, Stellplatz vorhanden, Nutzfläche: 77,00 m², Anzahl der Schlafzimmer: 2, Anzahl der Badezimmer: 2, Anzahl der Wohn-Schlafzimmer: 1, Bundesland: Estepona, 3 Etagen
Anbieter der Immobilie
Spain Homes
C/El Montículo 8, Benalmádena, 29631 MÁLAGA

Online-ID: 2jsxy5m
Referenznummer: AGP-0354-2-Duplex
Finde Angebote wie dieses
Hier geht es zu unserem Impressum, den Allgemeinen Geschäftsbedingungen, den Hinweisen zum Datenschutz und nutzungsbasierter Online-Werbung.