

Wohnung zur Miete710 €3,5 Zimmer • 80 m² • 4. Geschoss • frei ab sofort
710 €
3,5 Zimmer • 80 m² • 4. Geschoss • frei ab sofort
Helle große 3,5 Zimmer-Dachgeschoßwohnung mit Balkon und Blick ins Grüne...
Merkmale
- Bezug: sofort
- Dachgeschoss, 4. Geschoss
- Gäste-WC
- Balkon
- Badezimmer: Badewanne, Bad mit Dusche
- Waschraum
- Bodenbelag: Fliesen, Laminat
- Fenster: Holz
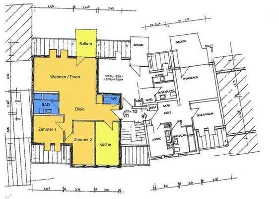
Grundrisse
Grundrisse
1 / 1
Realisiere Dein Projekt
Bausubstanz und Energie
Energieausweis
E
- Baujahr1984
- HeizungsartZentralheizung
- EnergieträgerGas
Mietkosten
Kaltmiete
8,88 €/m²
710 €
Nebenkosten
280 €
Kaution
2130 €
Lage

Dillweißenstein, Pforzheim (75180)
Der Anbieter hat die genaue Adresse nicht freigegeben
Weitere Services
Lust auf eine Besichtigung?
Eine Frage zur Immobilie?
Über den Anbieter
PPI- Peter Portz ImmobilienMaklerbüro
Esslinger Str. 49, 76228 Karlsruhe
Partnerschaft
Peter PortzDein Kontakt
Online-ID: 2jtkx56

PPI- Peter Portz Immobilien
Wie zufrieden bist du mit dieser Seite (nicht mit der Immobilie selbst)?