
KOBA Immobilien GmbH
Frau Julia Weber
004 ···
Nr. anzeigenPreise & Kosten
Provision für Käufer
5,95 % inkl. 19 % MwSt. vom Kaufpreis
Lage
Diese Eigentumswohnung befindet sich in einer erstklassigen Lage im Herzen der Innenstadt von Unna. Die zentrale Lage ermöglicht es den Bewohnern, alle Annehmlichkeiten des urbanen Lebens in unmittelbarer Nähe zu genießen. Nur etwa eine Minute zu Fuß entfernt befindet sich das örtliche Kino sowie die Lindenbrauerei, ein...
Die Wohnung
Wohnungslage
2. Geschoss (Dachgeschoss)
Derzeitige Nutzung
vermietet
Wohnanlage
Energie & Heizung
Warum sehe ich diese Anzeige? – Du siehst diese Anzeige basierend auf Ihrer Navigation auf unserer Website und den Suchkriterien, die du verwendet hast.
Energieausweistyp
Bedarfsausweis
Gebäudetyp
Wohngebäude
Baujahr laut Energieausweis
1913
Wesentliche Energieträger
GAS
Gültigkeit
bis 10.02.2035
Effizienzklasse
G
Endenergiebedarf
246,40 kWh/(m²·a)
Weitere Energiedaten
Energieträger
Gas
Heizungsart
Etagenheizung
Details
Objektbeschreibung
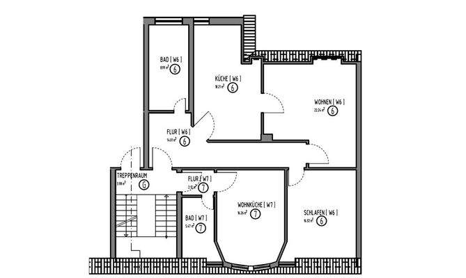
Bei dem hier angebotenen Objekt handelt es sich um eine gemütliche Eigentumswohnung im Dachgeschoss (rechts) einer schönen Altbauimmobilie in der Innenstadt von Unna. Die Wohnung verfügt über eine Wohnfläche von ca. 80 m², die sich auf zwei Zimmer, eine Küche und ein Badezimmer verteilt. Ein eigener Gartenanteil mit einer...
Ausstattung
- Wohnfläche: ca. 79,77 m²
- Lage: 2. Obergeschoss (Dachgeschoss) rechts
- Aufteilung: Wohnzimmer, Schlafzimmer, Küche, Bad, Flur
- Kaminofen im Wohnzimmer
- Gartenanteil
- ein Kellerraum
Weitere Informationen
Sonstiges
Courtagepassus
Der Maklervertrag mit uns und/oder unserem Beauftragten kommt durch schriftliche Vereinbarung oder durch die Inanspruchnahme unserer Maklertätigkeit auf der Basis des Objekt-Exposés und seiner Bedingungen zustande. Die Käufercourtage in Höhe von 5,95 % auf den Kaufpreis einschließlich...
Anbieter der Immobilie
KOBA Immobilien GmbH
Melsterstr. 4 , 59457 Werl
Online-ID: 2jtvs5a
Referenznummer: 830_6
Finde Angebote wie dieses
Hier geht es zu unserem Impressum, den Allgemeinen Geschäftsbedingungen, den Hinweisen zum Datenschutz und nutzungsbasierter Online-Werbung.