

Immobilien Andrea Maß e.K.
Frau Andrea Maß
+49 ···
Nr. anzeigenPreise & Kosten
Provision für Käufer
provisionsfrei
Lage
Lütjensee ist eine malerische Gemeinde im Kreis Stormarn in Schleswig-Holstein, die sich etwa 25 Kilometer nordöstlich von Hamburg befindet. Die Lage ist geprägt von einer idyllischen Landschaft mit Wäldern, Wiesen und dem gleichnamigen Lütjensee, der als Naherholungsgebiet dient. Die Einwohnerstruktur ist überwiegend von...
Die Wohnung
Bezug
nach Fertigstellung
Wohnanlage
Energie & Heizung
Warum sehe ich diese Anzeige? – Du siehst diese Anzeige basierend auf Ihrer Navigation auf unserer Website und den Suchkriterien, die du verwendet hast.
Energieausweistyp
Bedarfsausweis
Gebäudetyp
Wohngebäude
Baujahr laut Energieausweis
2025
Wesentliche Energieträger
Luftwärmepumpe
Gültigkeit
30.10.2023 bis 29.11.2033
Effizienzklasse
A+
Endenergiebedarf
15,90 kWh/(m²·a)
Weitere Energiedaten
Heizungsart
Fußbodenheizung, Luft-/Wasser-Wärmepumpe
Details
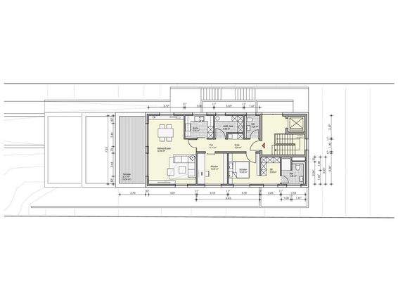
Objektbeschreibung
Nur wenige Gehminuten entfernt des Lütjensees, in einem einzigartigen Objekt, das modernes Design mit höchstem Wohnkomfort verbindet, entsteht Ihr neues Zuhause!
Dieses lichtdurchflutete Wohnjuwel, begeistert durch seine zeitgemäße Architektur und durchdachte Raumgestaltung, die sowohl Ästhetik als auch Funktionalität in...
Ausstattung
Terrassenwohnanlage mit 3 Wohneinheiten in KfW 40 EE Ausführung
- pro Etage nur eine Wohneinheit
- Luft-/ Wasser- Wärmepumpe mit PV Anlage und Batteriespeicher
- Fußbodenheizung
- Personenaufzug
- barrierearmer Zugang über die Tiefgarge, Aufzug direkt vor die Wohnungstür
- Tiefgaragenstellplatz optional für...
Preisinformation
1 Garagenstellplatz
Weitere Informationen
Stichworte
Garage vorhanden, Rolladen, Nutzfläche: 6,00 m², vermietbare Fläche: 99,50 m², Grundstücksfläche: 828,00 m², Anzahl der separaten WCs: 1, Anzahl Terrassen: 1, 3 Etagen
Anbieter der Immobilie
Immobilien Andrea Maß e.K.
Straatkoppel 22b, 25336 Elmshorn

Online-ID: 2ju3q56
Referenznummer: 2025
Finde Angebote wie dieses
Hier geht es zu unserem Impressum, den Allgemeinen Geschäftsbedingungen, den Hinweisen zum Datenschutz und nutzungsbasierter Online-Werbung.