

Sartory Bergmann Härtl GmbH
Herr Dipl.-Immobilienökonom (ADI) Lorenz Härtl
+49 ···
Nr. anzeigenPreise & Kosten
Kaution
3 Monatsmieten
Provision für Mieter
provisionsfrei
Warum sehe ich diese Anzeige? – Du siehst diese Anzeige basierend auf Ihrer Navigation auf unserer Website und den Suchkriterien, die du verwendet hast.
Lage
Sehr gute Verkaufslage an der Hauptstraße im Ortsteil Dorf
Beste Ortskernlage
Direkt einsehbar, unmittelbar neben dem Peißenberger Norma Markt
Insgesamt 99 Parkplätze
Hohe Frequenz durch Bäcker, Esso-Tankstelle, Gasthof zur Post, Kirche, Norma, u.v.m.
Hoher Bekanntheitsgrad in der...
Die Ladenfläche
Baujahr
1981
Bezug
ab sofort
Energie & Heizung
Warum sehe ich diese Anzeige? – Du siehst diese Anzeige basierend auf Ihrer Navigation auf unserer Website und den Suchkriterien, die du verwendet hast.
Wärme
Strom
Energieausweistyp
Verbrauchsausweis
Gebäudetyp
Nicht-Wohngebäude
Baujahr laut Energieausweis
1981
Wesentliche Energieträger
Gas
Gültigkeit
01.03.2018 bis 29.02.2028
Endenergieverbrauch (Wärme)
98,70 kWh/(m²·a) - Warmwasser enthalten
Endenergieverbrauch (Strom)
26,80 kWh/(m²·a) - Warmwasser enthalten
Details
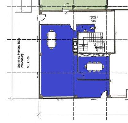
Objektbeschreibung
Büro-/Praxis- oder Ladenfläche in bester Sichtbarkeit mitten in Peißenberg Dorf.
Zur Gewerbeeinheit können Außenstellplätze mit angemietet werden.
Ausstattung
Großer Büroraum und separater Meetingraum
WC und Waschbecken
Küchenanschlüsse für eine Teeküche vorhanden.
Die Be- und Entladungszone befindet sich hinter dem Gebäude.
Ein Lastenaufzug ist vorhanden.
Weitere Informationen
Sonstiges
Die enthaltenen Informationen sind ausschließlich für den Empfänger bestimmt. Alle Daten beruhen auf den Angaben Dritter, für die wir keine Haftung übernehmen.
Gerne vereinbaren wir einen individuellen Besichtigungstermin mit Ihnen. Bitte füllen Sie hierzu das Kontaktformular vollständig aus. Bitte haben...
Anbieter der Immobilie

Online-ID: 2ju5z53
Finde Angebote wie dieses
Hier geht es zu unserem Impressum, den Allgemeinen Geschäftsbedingungen, den Hinweisen zum Datenschutz und nutzungsbasierter Online-Werbung.