

Studio zum Kauf280000 €3.733 €/m²3 Zimmer • 75 m² • 6. Geschoss
280000 €
3.733 €/m²
3 Zimmer • 75 m² • 6. Geschoss
Wohnung 75 m² Thessaloniki
Merkmale
- 6. Geschoss
- Meerblick
- möbliert
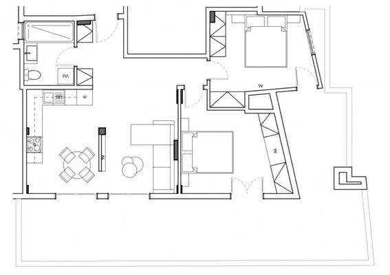
Grundrisse
Grundrisse
1 / 2
Realisiere Dein Projekt
Bausubstanz und Energie
Möchtest du Details zum Energieverbrauch?

- Baujahr1960
Preisdetails
Kaufpreis
280000 €
3.733,33 €/m²
Provision für Käufer
Bitte beachte, das Angebot kann bei Vertragsabschluss die Zahlung einer Provision beinhalten. Weitere Informationen erhältst Du vom Anbieter.
Lage

Thessaloniki
Der Anbieter hat die genaue Adresse nicht freigegeben
Weitere Informationen
Weitere Services
Lust auf eine Besichtigung?
Eine Frage zur Immobilie?
Über den Anbieter
14th km Thessaloniki - Mihaniona, 57001 THESSALONIKI
Frau Marianna PanagkasidouDein Kontakt
Online-ID: 25ZIYCMUDFR5
Referenznummer: 61952

Grekodom Development Constructing and BrokerageTrading Company S.A
Bewertung: 5 von 5 Sternen
Wie zufrieden bist du mit dieser Seite (nicht mit der Immobilie selbst)?

