
ESTINA Immobilien GmbH
Frau Danja Dieringer
+43 ···
Nr. anzeigenPreise & Kosten
Provision für Käufer
Bitte beachte, das Angebot kann bei Vertragsabschluss die Zahlung einer Provision beinhalten. Weitere Informationen erhältst Du vom Anbieter.
Die Wohnung
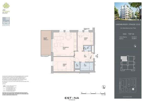
Wohnungslage
5. Geschoss
Bezug
Herbst / Winter 2024
Wohnanlage
Energie & Heizung
Warum sehe ich diese Anzeige? – Du siehst diese Anzeige basierend auf Ihrer Navigation auf unserer Website und den Suchkriterien, die du verwendet hast.
Heizwärmebedarf (HWB)
21,21 kWh/(m²·a)
Gesamtenergieeffizienz (fGEE)
0,69
Details
Objektbeschreibung
Inspiriert von der Kultur und der unvergleichlichen Schönheit Marokkos, ist der Schöne Platz mehr als nur ein Wohnensemble - es ist eine Ode an die Liebe zur Natur, zur Kunst und zur Lebensfreude.
Eingebettet in die künstlerische Gartengestaltung von André Heller bieten die neuen Wohnungen einen großzügigen Blick in...
Preisinformation
1 Stellplatz
Weitere Informationen
Stichworte
Energieversorgung mit alternativen Energien, Tiefgarage vorhanden, West-Balkon/Terrasse, Fahrradraum, Freifläche: 10,88 m², Anzahl der Badezimmer: 1, Anzahl der separaten WCs: 1, Anzahl Balkone: 1, Balkon-Terrassen-Fläche: 10,88 m², Bundesland: Wien
Anbieter der Immobilie

ESTINA Immobilien GmbH
Heinrichsgasse 4/12, 1010 WIEN
Online-ID: 2juam5z
Referenznummer: OBGC20240420210438288fc4328876a
Finde Angebote wie dieses
Günstige Immobilienfinanzierung einfach online berechnen
Persönliches Angebot berechnenWarum sehe ich diese Werbung? – Du siehst diese Werbung basierend auf Deiner Navigation auf unserer Website und der von Dir verwendeten Suchkriterien.
Diese Werbung wird bezahlt von durchblicker
Werbung melden
Hier geht es zu unserem Impressum, den Allgemeinen Geschäftsbedingungen, den Hinweisen zum Datenschutz und nutzungsbasierter Online-Werbung.