

Mahis & Müller Immobilien GmbH
Herr Thomas Müller
024 ···
Nr. anzeigenPreise & Kosten
Provision für Käufer
3,57% inkl. MwSt. zzgl. MwSt. Weitere Informationen siehe Provisionshinweis.
Lage
Ihre neue Immobilie befindet sich in einer der begehrtesten Geschäftslagen von Trier, in unmittelbarer Nähe zu zahlreichen Einkaufsmöglichkeiten, Restaurants und kulturellen Einrichtungen. Die Simeonstraße zeichnet sich durch ihre historische Architektur und ihren charmanten Charakter aus. Die Umgebung ist geprägt von...
Gastronomie/Hotel
Baujahr
1900
Energie & Heizung
Warum sehe ich diese Anzeige? – Du siehst diese Anzeige basierend auf Ihrer Navigation auf unserer Website und den Suchkriterien, die du verwendet hast.
Weitere Energiedaten
Energieträger
Gas
Heizungsart
Zentralheizung
Details
Objektbeschreibung
Trier-Zentrum: Historisches Geschäftshaus (Baudenkmal) in der Fußgängerzone unmittelbar an der Porta Nigra zu erwerben.
Das Haus ist langfristig - bis zum 31.12.2036 - vermietet.
Die Kaltmiete für das modernisierungsbedüftige Objekt beträgt über die gesamte Laufzeit monatlich 7.750€ (93.000€ p.a.) und ist über eine...
Ausstattung
Das Objekt ist modernisierungsbedüftig.
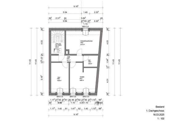
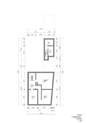
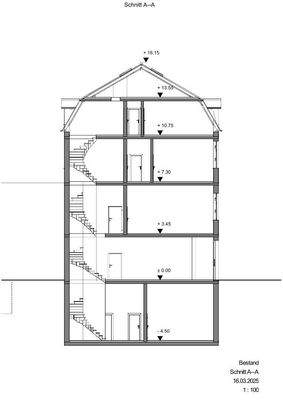
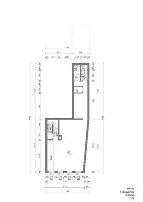
Die Gesamtfläche beträgt laut eines aktuellen Aufmasses 480,59m² und teilt sich wie folgt auf:
- Gewerbefläche 1 (Keller + Ladenlokal Erdgeschoss: 139,29m²
- Gewerbefläche 2 (1. Obergeschoss): 103,42m²
- Wohnfläche WE 1 (2. Obergeschoss): 69,66m²
- Wohnfläche WE 2 (3...
Preisinformation
Ist-Mieteinnahmen pro Jahr: 93.000,00 EUR
Weitere Informationen
Provisionshinweis
3,57% inkl. MwSt. zzgl. MwSt.
Die Vermittlungsprovision, welche vom Käufer zu zahlen ist, beträgt 3,57% des Kaufpreises und ist nach erfolgreichem Abschluss des notariellen Kaufvertrages verdient und fällig (dies entspricht 3% des Kaufpreises zuzüglich 19% MwSt.).
Sonstiges
Ihr neues Wohn-...
Anbieter der Immobilie
Mahis & Müller Immobilien GmbH
Augustinerweg 11, 52076 Aachen

Online-ID: 2jv255k
Referenznummer: Objekt00525
Finde Angebote wie dieses
Hier geht es zu unserem Impressum, den Allgemeinen Geschäftsbedingungen, den Hinweisen zum Datenschutz und nutzungsbasierter Online-Werbung.