

LEconsulTS
Herr Ing. Marco Schleiffer
037 ···
Nr. anzeigenPreise & Kosten
Provision für Käufer
Bitte beachte, das Angebot kann bei Vertragsabschluss die Zahlung einer Provision beinhalten. Weitere Informationen erhältst Du vom Anbieter.
Das Haus
Kategorie
Doppelhaushälfte
Geschosse
1 Geschoss
Baujahr
2025
Energie & Heizung
Warum sehe ich diese Anzeige? – Du siehst diese Anzeige basierend auf Ihrer Navigation auf unserer Website und den Suchkriterien, die du verwendet hast.
Weitere Energiedaten
Haustyp
Massivhaus
Energieträger
Elektro
Heizungsart
Luft-/Wasser-Wärmepumpe
Details
Objektbeschreibung
Bitte um schriftliche Kontaktaufnahme.
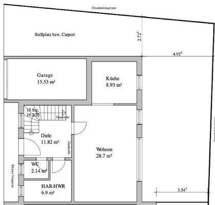
Mit WohnTon Massivhaus wird dieses wunderschöne Doppelhaus auf einem, ca 375 m² großen & sonnigen Grundstück im beschaulichen und ruhigen Pegau, mitten im Stadtkern, errichtet.
Die Bauweise erfolgt traditionell massiv Stein auf Stein und verspricht Ihnen somit größtmögliche...
Ausstattung
- Erstellung des Hauses ausschließlich mit Markenartikeln
- Architektenhaus
- leichte Grundrissänderungen möglich
- Erdarbeiten, Bodenplatte
- 36,5 cm Außenmauerwerk aus ökologischem Blähton, keine Dämmung notwendig
- Außenputz, Buntsteinputz als Sockel
- Wärmepumpe Luft - Wasser ausschließlich von Viessmann...
Weitere Informationen
Sonstiges
Seit vielen Jahren realisieren wir in und um Sachsen, Sachsen-Anhalt, Brandenburg und Berlin Bauprojekte nach den Wünschen unserer Kunden.
Wir arbeiten ausschließlich mit Firmen aus der Region zusammen um Ihnen eine gleichbleibende, hochwertige Qualität zu liefern.
Vom Entwurf Ihres Hauses über das...
Dokumente
Anbieter der Immobilie
LEconsulTS
August-Bebel-Str. 47 c, 04571 Rötha

Online-ID: 2jv5e5t
Finde Angebote wie dieses
Hier geht es zu unserem Impressum, den Allgemeinen Geschäftsbedingungen, den Hinweisen zum Datenschutz und nutzungsbasierter Online-Werbung.