
IF Group AG
Team Vermietung Freiberg
+ 4 ···
Nr. anzeigenPreise & Kosten
Kaution
3 Monatskaltmieten
Warum sehe ich diese Anzeige? – Du siehst diese Anzeige basierend auf Ihrer Navigation auf unserer Website und den Suchkriterien, die du verwendet hast.
Lage
Die Kreisstadt Mülsen liegt im Landkreis Zwickau östlich der Zwickauer
Mulde. Mülsen liegt sehr verkehrsgünstig und die Autobahn A4 nur wenige
Kilometer entfernt. Dies ermöglicht eine schnelle Anbindung an größere
Städte wie Zwickau und Chemnitz. Derzeit wohnen in Mülsen ca. 10.800
Einwohner (Dez. 2022).
Die Wohnung
Wohnungslage
4. Geschoss
Derzeitige Nutzung
frei
Wohnanlage
Energie & Heizung
Warum sehe ich diese Anzeige? – Du siehst diese Anzeige basierend auf Ihrer Navigation auf unserer Website und den Suchkriterien, die du verwendet hast.
Energieausweistyp
Verbrauchsausweis
Gebäudetyp
Wohngebäude
Baujahr laut Energieausweis
1981
Wesentliche Energieträger
KWK fossil
Gültigkeit
07.09.2023 bis 06.09.2033
Effizienzklasse
D
Endenergieverbrauch
121,40 kWh/(m²·a)
Weitere Energiedaten
Energieträger
Blockheizkraftwerk, Gas
Heizungsart
Zentralheizung
Details
Objektbeschreibung
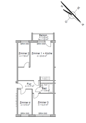
Die frisch renovierte 4 Raum-Wohnung befindet sich im 4. Obergeschoss
in einem Gebäude mit 58 Wohneinheiten und 5 Hauseingängen. Die Wohnung verfügt über einen Balkon.
Ca. 5–10 Gehminuten vom Gebäudekomplex entfernt befindet sich die
Bushaltestelle, eine Kindereinrichtung, eine Grundschule...
Weitere Informationen
Besichtigungstermine
Bei Interesse vereinbaren Sie gern einen Besichtigungstermin mit uns.
Hinterlassen Sie Ihre Anschrift sowie Telefonnummer und wir werden uns umgehend mit Ihnen in Verbindung setzen.
Hinweise zum Datenschutz unter https://www.ifgruppe.com/impressum-datenschutz.
Mit Ihrer Kontaktanfrage...
Anbieter der Immobilie
IF Group AG
Oberes Muldental 2, 09599 Freiberg
Online-ID: 2jvcn55
Finde Angebote wie dieses
Hier geht es zu unserem Impressum, den Allgemeinen Geschäftsbedingungen, den Hinweisen zum Datenschutz und nutzungsbasierter Online-Werbung.