
BEST PLACE Immobilien GmbH & Co. KG
Ihr Best Place Vertriebsteam
004 ···
Nr. anzeigenDieses Angebot ist Teil des Neubauprojekts
MOMMSEN 42
Preise & Kosten
Provision für Käufer
3,57%
Lage
Mommsen 42 ist ein Eckwohnhaus aus der Gründerzeit im Bezirk Charlottenburg- Wilmersdorf. Die Lage zwischen der Mommsen- und der Waitzstraße bietet eine hervorragende Anbindung an öffentliche Verkehrsmittel und ist nur wenige Minuten von wichtigen Knotenpunkten wie dem Kurfürstendamm entfernt. Die Mommsenstraße selbst...
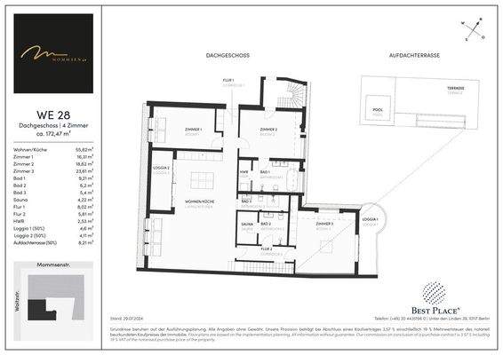
Die Wohnung
Wohnungslage
5. Geschoss (Dachgeschoss)
Wohnanlage
Das Neubauprojekt
Energie & Heizung
Warum sehe ich diese Anzeige? – Du siehst diese Anzeige basierend auf Ihrer Navigation auf unserer Website und den Suchkriterien, die du verwendet hast.
Energieausweis: für diesen Gebäudetyp nicht notwendig
Weitere Energiedaten
Energieträger
Elektro, Fernwärme
Details
Objektbeschreibung
Der klassische Jahrhundertwendealtbau liegt in einer Top Citylage mit verkehrsberuhigter Zone. Das Eckhaus beeindruckt von außen mit altbautypischen Details und bekommt vier exklusive Neubau-Penthouses. Freuen Sie sich auf ein erstklassiges Wohnerlebnis mit bis zu ca. 7 m hohen Decken, Aufdachterrassen und handverlesener...
Ausstattung
.Neubau-Penthouse
.Offener Wohn-, Koch- und Essbereich mit Süd-West-Loggia
.3 Schlafzimmer, davon zwei mit en suite Badezimmer und eins mit eigener Loggia
.Aufdachterrasse mit Panoramablick
.Hauswirtschaftsraum
.Hochwertige Ausstattung mit Parkett und Fußbodenheizung
.Personenaufzug
Weitere Informationen
Sonstiges
Dieses und weitere 70 Immobilienprojekte können Sie jetzt in Berlins erster Immobilien-Erlebniswelt entdecken und digital erleben.
Sie finden uns: Unter den Linden 39, 10117 Berlin - direkte an der Friedrichstraße.
Wir freuen uns auf Ihren Besuch!
Stichworte
Gesamtfläche: 172,47 m², vermietbare...
Anbieter der Immobilie
Online-ID: 2jvzn5u
Referenznummer: MOMM-WE28
Finde Angebote wie dieses
Hier geht es zu unserem Impressum, den Allgemeinen Geschäftsbedingungen, den Hinweisen zum Datenschutz und nutzungsbasierter Online-Werbung.