

Produktionshalle zur Miete8.950 €2.265 m² Lagerfläche
8.950 €
2.265 m² Lagerfläche
Gepflegte Gewerbehalle (Produktion/Lager) mit Büro- und Sozialräumen in Arnsberg-Neheim
Merkmale
- Bezug: nach Vereinbarung
- Kein Keller
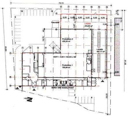
Grundrisse
Grundrisse
1 / 1
Realisiere Dein Projekt
Bausubstanz und Energie
Energieausweis
Endenergieverbrauch (Wärme)
- Baujahr1990
- Zustand der ImmobilieGepflegt
Mietkosten
Nettomiete
8.950 €
Nebenkosten
700 €
Zusätzliche Kosten
Heizkosten
Provision fĂĽr Mieter
1,19 Monatsmieten inkl. 19% MwSt. bis 5 Jahre
2,38 Monatsmieten inkl. 19% MwSt. ab 5 Jahre
2,38 Monatsmieten inkl. 19% MwSt. ab 5 Jahre
Kaution
2 Monatsmieten (kalt)
Weitere Preisinformationen
Nettokaltmiete: 8.950,00 EUR
Lage

Neheim-Hüsten, Arnsberg (59757)
Der Anbieter hat die genaue Adresse nicht freigegeben
Weitere Informationen
Weitere Services
Lust auf eine Besichtigung?
Eine Frage zur Immobilie?
Ăśber den Anbieter
Philipp Fischer Immobilien GmbHMaklerbĂĽro
ApothekerstraĂźe 59, 59755 Arnsberg
10 Jahre Partnerschaft

Herr Philipp FischerDein Kontakt
Online-ID: 2jwea5a
Referenznummer: 549


Philipp Fischer Immobilien GmbH
Bewertung: 4,2 von 5 Sternen
Wie zufrieden bist du mit dieser Seite (nicht mit der Immobilie selbst)?

