

WvM Vertriebsgesellschaft mbH
022 ···
Nr. anzeigenDieses Angebot ist Teil des Neubauprojekts
Roelckestraße 111
Preise & Kosten
Provision für Käufer
provisionsfrei
Lage
Im Gründerviertel von Weißensee erwartet Sie ein Rundum-sorglos-Paket für Lebensqualität, Lernen und Genießen: Schulen, Kitas und Arztpraxen sind fußläufig erreichbar, Geschäfte liegen um die Ecke, Cafés und Restaurants laden zum Verweilen ein. Das Viertel mit Wurzeln im frühen 20. Jahrhundert strahlt typisches Berliner Flair...
Die Wohnung
Wohnungslage
Erdgeschoss
Bezug
30.09.2026
Wohnanlage
Das Neubauprojekt
Energie & Heizung
Warum sehe ich diese Anzeige? – Du siehst diese Anzeige basierend auf Ihrer Navigation auf unserer Website und den Suchkriterien, die du verwendet hast.
Energieausweistyp
Bedarfsausweis
Gebäudetyp
Wohngebäude
Wesentliche Energieträger
Fernwärme
Gültigkeit
31.05.2024 bis 30.05.2034
Effizienzklasse
B
Endenergiebedarf
59,60 kWh/(m²·a)
Weitere Energiedaten
Energieträger
Fernwärme
Heizungsart
Fußbodenheizung
Details
Objektbeschreibung
In Berlin-Weißensee entsteht eine neue Wohnanlage, die bald zur Heimat all derer werden kann, die nach einem geschützten, grünen Kosmos suchen. Benannt nach dem Kunstgärtner Hermann Roelcke (1832-1896), erbt das Ensemble "Roelcke 111" nicht nur dessen Namen, sondern auch seine Vision: So verwandelt sich das Quartierszentrum...
Ausstattung
*Der Preisvorteil ist bereits im Kaufpreis enthalten und gilt für Einheiten nach Maßgabe des Verkäufers. Die Kaufpreis-Aktion läuft bis zum 28.02.2026. Änderungen, Irrtümer oder vorzeitige Einstellung vorbehalten.
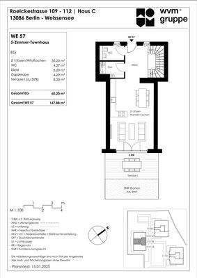
Auf 147,88 m² erstreckt sich eine großzügige 5-Zimmer-Wohnung vom Untergeschoss bis in das 2. OG, die...
Weitere Informationen
Sonstiges
ENERGIEPFLICHTANGABEN GEM. § 87 GEG:
Haus C:
Ausweistyp: Bedarfsausweis
Energieträger: Nah-/Fernwärme
Endenergiebedarf: 59,6 kWh/(m²*a)
Heizungsart: Fußbodenheizung
Baujahr: 2024
Energieeffizienzklasse: B
Bei den Visualisierungen handelt es sich um unverbindliche...
Anbieter der Immobilie
Online-ID: 2jwhr52
Referenznummer: ROE 111 - WE 57
Finde Angebote wie dieses
Hier geht es zu unserem Impressum, den Allgemeinen Geschäftsbedingungen, den Hinweisen zum Datenschutz und nutzungsbasierter Online-Werbung.