HBI-Immobilienvertriebs GmbH

Herr Harem Jahja

Schwachhausen / Schöne Altbauwohnung mit Garten

€ 299.000
Kaufpreis
75,50 m²
Wohnfläche ca.
3
Zimmer

Der Anbieter dieses Objekts hat gegenüber der AVIV Germany GmbH als Betreiber dieses Online-Marktplatzes erklärt, nicht als Unternehmer im Sinne des § 1 KSchG zu handeln. Die im Verbraucherschutzrecht der Union verankerten Verbraucherrechte (insbesondere Informationspflichten und Rücktritts- bzw. Widerrufsrechte) finden auf den Vertrag zwischen dem Anbieter des Objekts und Ihnen (dem Interessenten) keine Anwendung.

Gewerblicher Anbieter

Der Anbieter dieses Objekts hat gegenüber der AVIV Germany GmbH als Betreiber dieses Online-Marktplatzes erklärt, als Unternehmer im Sinne des § 1 KSchG zu handeln.

AdresseStraße nicht freigegeben
28211 Bremen 
(Radio Bremen)
Auf Karte ansehen

Preise & Kosten

Kaufpreis € 299.000 Nebenkosten € 200

Provision für Käufer

3,57 %

Lage

Die Wohnung befindet sich im Stadtteil Bremen-Schwachhausen, im grünen und ruhigen Ortsteil Radio Bremen, einer begehrten Toplage.

Einkaufsmöglichkeiten für den täglichen Bedarf, verschiedene Schulen, Sportvereine und Kindergärten sind ebenso bequem zu erreichen wie der wunderschöne und große Bürgerpark, der zum...

Mehr anzeigen

Die Wohnung

  • Balkon
  • Weitere Räume: Kelleranteil

Wohnanlage

  • Baujahr: 1954

Energie & Heizung

A+
A
B
C
D
E
F
G
H
0 25 50 75 100 125 150 175 200 225 250 +

Energieausweistyp

Bedarfsausweis

Gebäudetyp

Wohngebäude

Wesentliche Energieträger

Gas

Gültigkeit

28.10.2019 bis 27.10.2029

Effizienzklasse

D

Endenergiebedarf

129,00 kWh/(m²·a)

Weitere Energiedaten

Energieträger

Gas

Heizungsart

Zentralheizung

Details

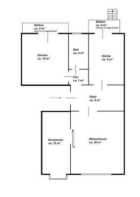
Objektbeschreibung

Diese wirklich schön geschnittene Altbauwohnung befindet sich im Hochparterre eines Mehrfamilienhauses in Bremen - Schwachhausen.

Von der großzügigen Diele gelangen Sie in den gemütlichen Wohnbereich, der durch eine Schiebetür vom Essbereich getrennt ist. Die Küche ist ebenfalls von der Diele zu erreichen - von hier...

Mehr anzeigen

Ausstattung

- Holz-/und Kunststoffisolierglasfenster
- Fischgrätparkett
- Schiebetür mit Glaseinsatz
- Weiß gefliestes Vollbad
- Vollholz-Einbauküche mit Elektrogeräten
- Zwei Balkone
- Garten mit einer Größe von ca. 144 m² (Sondernutzungsrecht)
- Gegensprechanlage
- Großer Kellerraum mit einer Größe von ca. 7...

Mehr anzeigen

Weitere Informationen

Stichworte
Nutzfläche: 7,00 m², Anzahl Balkone: 2

Anbieter der Immobilie

Partner

HBI-Immobilienvertriebs GmbH

Schwachhauser Heerstraße 144, 28213 Bremen

user

Herr Harem Jahja

Dein Ansprechpartner

Anbieter-Website Anbieter-Profil Anbieter-Impressum

Online-ID: 2jwm95j

Referenznummer: 130000853

Finde Angebote wie dieses

imageimageimage

Hier geht es zu unserem Impressum, den Allgemeinen Geschäftsbedingungen, den Hinweisen zum Datenschutz und nutzungsbasierter Online-Werbung.