
Immobilienbüro Kühn GmbH Co. KG, Komplimentär: Immobilienbüero Kühn Verwaltungs GmbH
Herr Wolfgang Kühn
+49 ···
Nr. anzeigenPreise & Kosten
Provision für Käufer
3,57 % des Kaufpreises inkl. gesetzlicher MwSt.
Die Provision beträgt 3,57 % des Kaufpreises inkl. 19 % MwSt. Weitere Informationen siehe Provisionshinweis.
Lage
Die Große Kreisstadt Oelsnitz/Vogtl. liegt im Westen des sächsischen Vogtlandkreises. Die Stadt mit ca. 10.000 Einwohnern befindet sich südlich von Plauen und ist Mitglied der Verwaltungsgemeinschaft Oelsnitz/Vogtl. Am Rande des Stadtzentrums fließt die Weiße Elster. Chemnitz befindet sich circa 80 km nordöstlich von Oelsnitz...
Das Renditeobjekt
Kategorie
Bürogebäude
Baujahr
1994
Frei ab
vermietet
Energie & Heizung
Warum sehe ich diese Anzeige? – Du siehst diese Anzeige basierend auf Ihrer Navigation auf unserer Website und den Suchkriterien, die du verwendet hast.
Wärme
Strom
Energieausweistyp
Verbrauchsausweis
Gebäudetyp
Nicht-Wohngebäude
Baujahr laut Energieausweis
1994
Wesentliche Energieträger
Gas
Endenergieverbrauch (Wärme)
100,00 kWh/(m²·a) - Warmwasser enthalten
Endenergieverbrauch (Strom)
123,00 kWh/(m²·a) - Warmwasser enthalten
Weitere Energiedaten
Energieträger
Gas
Heizungsart
Zentralheizung
Details
Objektbeschreibung
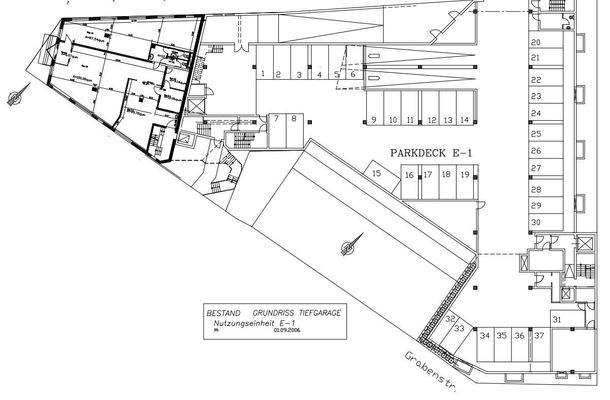
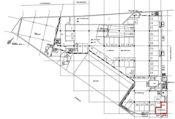
Das Geschäftshaus wurde 1994 in 2 Bauabschnitten errichtet. Das Bauteil I ist unterkellert. Dort befindet sich auf 2 Ebenen verteilt eine Tiefgarage mit insgesamt 77 Stellplätzen. Es gibt 7 Gewerbeeinheiten mit einer Nutzfläche von ca. 2.759 m². Eine Einheit im Erdgeschoss (ca. 1.557 m²) ist an einen EDEKA-Markt vermietet...
Preisinformation
77 Tiefgaragenstellplätze
Weitere Informationen
Provisionshinweis
3,57 % des Kaufpreises inkl. gesetzlicher MwSt.
Die Provision beträgt 3,57 % des Kaufpreises inkl. 19 % MwSt.
Sie ist verdient mit Abschluss des notariellen Kaufvertrages und spätestens mit dem Kaufpreis zur Zahlung fällig. Der Makler hat mit dem Verkäufer einen provisionspflichtigen Vertrag in...
Dokumente
Online-ID: 2jx2s58
Referenznummer: OelGr26
Finde Angebote wie dieses
Hier geht es zu unserem Impressum, den Allgemeinen Geschäftsbedingungen, den Hinweisen zum Datenschutz und nutzungsbasierter Online-Werbung.