

VITURIA Gesellschaft für Immobiliendienstleistungen mbH
Herr Dustin Laudahn
041 ···
Nr. anzeigenPreise & Kosten
Provision für Käufer
5,95 % inkl. gesetzlicher MwSt.
Lage
Mikrolage:
Das Objekt in Ludwigslust liegt in einer ruhigen Wohngegend im Stadtteil Ludwigslust-Süd. Diese Lage bietet eine angenehme Wohnatmosphäre mit viel Grün und einer geringen Verkehrsbelastung. In unmittelbarer Umgebung befinden sich eine Grundschule, eine Gesamtschule und ein Gymnasium, die bequem zu Fuß oder mit...
Das Haus
Kategorie
Mehrfamilienhaus
Baujahr
1890
Energie & Heizung
Warum sehe ich diese Anzeige? – Du siehst diese Anzeige basierend auf Ihrer Navigation auf unserer Website und den Suchkriterien, die du verwendet hast.
Weitere Energiedaten
Energieträger
Gas
Details
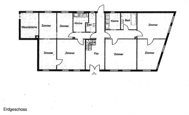
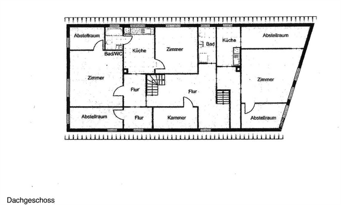
Objektbeschreibung
Dieses denkmalgeschütze Mehrfamilienhaus wurde im Jahre 1890 in der Massivbauweise errichtet und bietet heute eine Wohnfläche von rund 417 qm, verteilt auf Erd-, Ober- und Dachgeschoss. Der Altbau befindet sich in zentraler Innenstadtlage und verfügt über sechs ideal geschnittene Wohnungen. Im Jahre 1995-1997 erfolgten...
Ausstattung
Besonderheiten/Ausstattung:
- Umfangreiche Modernisierungen 1995-97
- 4 Stellplätze
- 6 Parteien (Vermietet)
- 31.500,00 € Nettomieteinnahmen p.a. / 10,87 % Rendite
- Zuschüsse für die Dacherneuerung möglich
Weitere Informationen
Sonstiges
Sie möchten den Marktwert Ihrer Immobilie erfahren oder überlegen Ihre Immobilie zu verkaufen? Dann sind Sie bei uns genau richtig! Wir stehen Ihnen mit Fachkenntnis und Sachverstand kompetent zur Seite und bieten Ihnen einen auf Sie persönlich zugeschnittenen Service.
Wir freuen uns über Ihre Kontaktaufnahme...
Anbieter der Immobilie
VITURIA Gesellschaft für Immobiliendienstleistungen mbH
Vor dem Bardowicker Tore 6A, 21339 Lüneburg

Online-ID: 2jx965a
Referenznummer: A300
Finde Angebote wie dieses
Hier geht es zu unserem Impressum, den Allgemeinen Geschäftsbedingungen, den Hinweisen zum Datenschutz und nutzungsbasierter Online-Werbung.