

Terrania GmbH
Frau Nadine Schwarzer
+49 ···
Nr. anzeigenPreise & Kosten
Kaution
3 BWM
Provision für Mieter
provisionsfrei
Warum sehe ich diese Anzeige? – Du siehst diese Anzeige basierend auf Ihrer Navigation auf unserer Website und den Suchkriterien, die du verwendet hast.
Lage
Das Objekt liegt äußerst zentral im Stadteil Eilbek, Bezirk Wandsbek, nur 100 m von der U-Bahn-Station 'Wartenau' und etwa 300 m von der S-Bahn-Station 'Landwehr' entfernt. Durch diese hervorragende Anbindung sind Sie innerhalb von 5 Minuten am Hauptbahnhof, aber auch die östlichen Autobahnzubringer sind im Nu erreicht. Für...
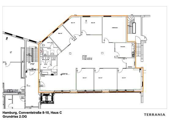
Büro-/Praxisfläche
Kategorie
Bürofläche
Baujahr
1915
Bezug
ab sofort
Geschoss
2. Geschoss
Energie & Heizung
Warum sehe ich diese Anzeige? – Du siehst diese Anzeige basierend auf Ihrer Navigation auf unserer Website und den Suchkriterien, die du verwendet hast.
Wärme
Strom
Energieausweistyp
Verbrauchsausweis
Gebäudetyp
Nicht-Wohngebäude
Baujahr laut Energieausweis
1915
Wesentliche Energieträger
Öl
Gültigkeit
23.04.2025 bis 23.04.2035
Endenergieverbrauch (Wärme)
102,30 kWh/(m²·a)
Endenergieverbrauch (Strom)
25,40 kWh/(m²·a)
Weitere Energiedaten
Energieträger
Öl
Details
Objektbeschreibung
Die 'Conventlofts | in der alten Bäckerei' befinden sich auf einem Gewerbehof im Stadtteil Eilbek, Bezirk Wandsbek. In seiner ursprünglichen Nutzung (ab 1915) beherbergten die verschiedenen Gebäudeteile des Hofes eine der ersten Großbäckereien Hamburgs. Nach umfangreicher Sanierung im Jahr 2018/19 entstanden lichtdurchflutete...
Ausstattung
- Wände: glatt gespachtelt mit hellem Anstrich sowie offener Bachstein
- Decken: glatt gespachtelt mit hellem Anstrich
- EDV: Glasfaser
- Lasten- und Personenaufzug bis 1,6 t (Größe ausreichend für eine Palette mit Wagen)
- Fußböden: Vinyl
- Einbauküche
- 2 separate WCs
Weitere Informationen
Sonstiges
Ein aktueller Energieausweis ist in Erstellung und wird bis spätestens Mietvertragsabschluss vorliegen.
Die Vermietung erfolgt direkt über den Eigentümer und ist für Sie provisionsfrei.
Stichworte
Stellplatz vorhanden, Gesamtfläche: 312,14 m², Anzahl der separaten WCs: 2, 5 Etagen
Anbieter der Immobilie
Terrania GmbH
Sendlinger Straße 47, 80331 München

Online-ID: 2jxer5q
Referenznummer: 178121925#htIX7e
Finde Angebote wie dieses
Hier geht es zu unserem Impressum, den Allgemeinen Geschäftsbedingungen, den Hinweisen zum Datenschutz und nutzungsbasierter Online-Werbung.