
Kern-Haus AG, Niederlassung Erfurt
036 ···
Nr. anzeigenPreise & Kosten
Provision für Käufer
provisionsfrei
Lage
In zentraler Lage in der Brühlervorstadt gelegenes Baugrundstück.
Strassenbahn , Einkaufsmöglichkeiten, Ärzte in unmittelbarer Nähe.
Kita und Schule sehr gut erreichbar.
Das Haus
Kategorie
Doppelhaushälfte
Baujahr
2025
Energie & Heizung
Warum sehe ich diese Anzeige? – Du siehst diese Anzeige basierend auf Ihrer Navigation auf unserer Website und den Suchkriterien, die du verwendet hast.
Energieausweistyp
Bedarfsausweis
Gebäudetyp
Wohngebäude
Effizienzklasse
A+
Endenergiebedarf
19,63 kWh/(m²·a)
Weitere Energiedaten
Energieträger
Elektro
Heizungsart
Fußbodenheizung, Zentralheizung
Details
Objektbeschreibung
Das Doppelhaus Viseo gleicht einem perfekt durchdachten Raumwunder.
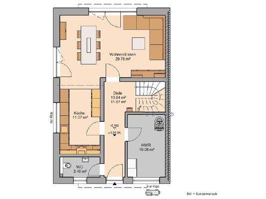
Auf zwei Geschossen erstreckt sich das Haus auf 129 m². Im Erdgeschoss befinden sich ein WC, der Hauswirtschaftsraum und der großzügige Wohn-/ Essbereich mit offener Küche, der durch bodentiefe Fensterelemente wunderbar erhellt wird. Über die gut...
Ausstattung
4 Zimmer, Küche, Diele, Bad, WC, Ankleide, Flur, Hauswirtschaftsraum
Das gezeigte Traumhaus im Überblick:
+ Schlüsselfertiges Massivhaus im Sinne der Ausstattungsbeschreibung "Edition 25"
+ Zukunftsorientierte Energieausstattung in Form einer Luft-Wasser-Wärmepumpe und Fußbodenheizung sowie einer...
Weitere Informationen
Sonstiges
Kern-Haus
Kern-Haus baut individuelle und massive Architektenhäuser zu einem attraktiven Preis-Leistungs-Verhältnis - und das bereits mit einer Erfahrung seit 1980. Bei Kern-Haus erhalten Sie unter anderem 10 Jahre Gewährleistung auf die wesentlichen Bauleistungen, bis zu 24 Monate Preissicherheit sowie...
Anbieter der Immobilie
Online-ID: 2jxv85u
Referenznummer: KEF 72929
Finde Angebote wie dieses
Hier geht es zu unserem Impressum, den Allgemeinen Geschäftsbedingungen, den Hinweisen zum Datenschutz und nutzungsbasierter Online-Werbung.