

Nageler Immobilien GmbH
004 ···
Nr. anzeigenPreise & Kosten
Provision für Käufer
Bitte beachte, das Angebot beinhaltet bei Vertragsabschluss die Zahlung einer Provision. Weitere Informationen erhältst Du vom Anbieter.
Lage
Dieses Neubauprojekt wird in einer der begehrtesten Lagen von Villach realisiert. Direkt angrenzend an einen idyllischen Wald bietet es Ihnen eine friedliche Umgebung, die zu Spaziergängen, Radtouren und anderen Freizeitaktivitäten einlädt. Gleichzeitig profitieren Sie von einer hervorragenden Infrastruktur. Der malerische...
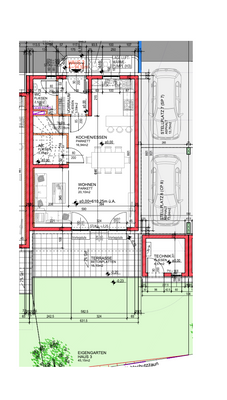
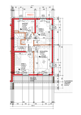
Das Haus
Energie & Heizung
Warum sehe ich diese Anzeige? – Du siehst diese Anzeige basierend auf Ihrer Navigation auf unserer Website und den Suchkriterien, die du verwendet hast.
Heizwärmebedarf (HWB)
48,00 kWh/(m²·a)
Gesamtenergieeffizienz (fGEE)
0,73
Weitere Energiedaten
Heizungsart
Luft-/Wasser-Wärmepumpe
Details
Objektbeschreibung
Die sechs Reihenhäuser zeichnen sich durch ihre großzügigen Raumaufteilungen aus. Sie erstrecken sich über zwei Etagen und bieten sowohl Paaren als auch Familien den idealen Lebensraum.
Im Erdgeschoss finden Sie einen Abstellraum, der sich ideal für die Lagerung von Haushaltsgegenständen eignet. Der lichtdurchflutete...
Anbieter der Immobilie
Online-ID: 2jyjz55
Finde Angebote wie dieses
Günstige Immobilienfinanzierung einfach online berechnen
Persönliches Angebot berechnenWarum sehe ich diese Werbung? – Du siehst diese Werbung basierend auf Deiner Navigation auf unserer Website und der von Dir verwendeten Suchkriterien.
Diese Werbung wird bezahlt von durchblicker
Werbung melden
Hier geht es zu unserem Impressum, den Allgemeinen Geschäftsbedingungen, den Hinweisen zum Datenschutz und nutzungsbasierter Online-Werbung.