MW Hausvertrieb - Kooperationspartner von Heinz von Heiden GmbH Massivhäuser

Herr Michael Wolter

Hausbesichtigung des neuen Musterhauses der Fa. Heinz von Heiden nach Vereinbarung

€ 362.900
Kaufpreis
173 m²
Wohnfläche ca.
k.A.
Zimmer
k.A.
Grundstücksfl.

Der Anbieter dieses Objekts hat gegenüber der AVIV Germany GmbH als Betreiber dieses Online-Marktplatzes erklärt, nicht als Unternehmer im Sinne des § 1 KSchG zu handeln. Die im Verbraucherschutzrecht der Union verankerten Verbraucherrechte (insbesondere Informationspflichten und Rücktritts- bzw. Widerrufsrechte) finden auf den Vertrag zwischen dem Anbieter des Objekts und Ihnen (dem Interessenten) keine Anwendung.

Provisionsfrei
Gewerblicher Anbieter

Der Anbieter dieses Objekts hat gegenüber der AVIV Germany GmbH als Betreiber dieses Online-Marktplatzes erklärt, als Unternehmer im Sinne des § 1 KSchG zu handeln.

AdresseBültenweg 2
21365 Adendorf 
Auf Karte ansehen

Preise & Kosten

Kaufpreis € 362.900

Provision für Käufer

provisionsfrei

Lage

Bültenweg 2, (an der Artlenburger Landstraße)

Das Haus

Kategorie

Einfamilienhaus

Baujahr

2025

  • nicht unterkellert
  • Bad mit Fenster, Wanne und Dusche, Gäste-WC, Bad/WC getrennt
  • Fenster: Kunststofffenster
  • kontrollierte Be- und Entlüftungsanlage

Energie & Heizung

A+
A
B
C
D
E
F
G
H
0 25 50 75 100 125 150 175 200 225 250 +

Energieausweistyp

Bedarfsausweis

Gebäudetyp

Wohngebäude

Gültigkeit

26.02.2025 bis 26.02.2035

Effizienzklasse

A+

Endenergiebedarf

20,00 kWh/(m²·a)

Weitere Energiedaten

Haustyp

Massivhaus

Heizungsart

Fußbodenheizung, Luft-/Wasser-Wärmepumpe

Details

Objektbeschreibung

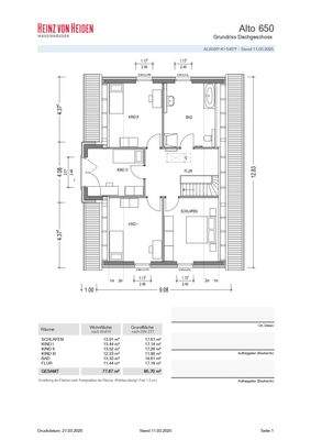
6 Zimmer

Weitere Informationen

Hausbesichtigung EFH
Hausbesichtigung des neuen Musterhauses
der Fa. Heinz von Heiden Massivhäuser nach Vereinbarung
Haustyp Alto 650
massive Bauweise
mit Verblendfassade
elektrische Rollläden
Lüftungsanlage mit Wärmerückgewinnung
Luft-Wasser-Wärmepumpe
Fußbodenheizung
farbige Fenster- u...

Mehr anzeigen

Anbieter der Immobilie

PartnerDiamond Partner

MW Hausvertrieb - Kooperationspartner von Heinz von Heiden GmbH Massivhäuser

im Durchschnitt  4,00  Sterne
(bei 1 Bewertungen)

Stellmacherstraße 68, 21335 Lüneburg

user

Herr Michael Wolter

Dein Ansprechpartner

Anbieter-Website Anbieter-Profil Anbieter-Impressum

Online-ID: 2jynp5g

Finde Angebote wie dieses

imageimageimage

Hier geht es zu unserem Impressum, den Allgemeinen Geschäftsbedingungen, den Hinweisen zum Datenschutz und nutzungsbasierter Online-Werbung.