

MONDAO Immobilien
Frau Simone Schneider
093 ···
Nr. anzeigenPreise & Kosten
Provision für Käufer
3.57 % inkl. MwSt.
Lage
Das Anwesen befindet sich mitten in der Altstadt, in direkter Lage neben einer Hauptgeschäftsstraße.
Das Renditeobjekt
Kategorie
Mehrfamilienhaus
Baujahr
1962
Bezug
sofort
Energie & Heizung
Warum sehe ich diese Anzeige? – Du siehst diese Anzeige basierend auf Ihrer Navigation auf unserer Website und den Suchkriterien, die du verwendet hast.
Wärme
Energieausweistyp
Bedarfsausweis
Gebäudetyp
Nicht-Wohngebäude
Baujahr laut Energieausweis
1962
Endenergiebedarf (Wärme)
285,80 kWh/(m²·a)
Weitere Energiedaten
Energieträger
Gas
Heizungsart
Etagenheizung
Details
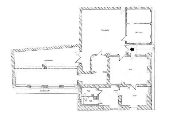
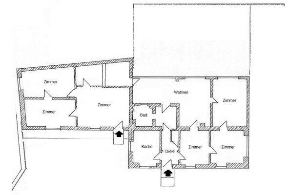
Objektbeschreibung
Attraktives Immobilien Ensemble mit Entwicklungspotenzial mitten in der Altstadt
Das Anwesen teilt sich wie folgt auf:
- Mehrfamilienwohnhaus mit acht Parteien, Wohnfläche ca. 450 qm, soweit gut instand gehalten, komplett vermietet
- Einfamilienwohnhaus mit Anbau, sanierungsbedürftig, ca. 150 qm, derzeit...
Ausstattung
* Fliesen-, Laminat-, und Parkettböden
* doppeltisolierverglaste Fenster mit weißemKunsstoffrahmen
* acht Bäder
* acht Gasetagenheizungen überwiegend aus den 90er Jahren
* Hof mit Zufahrt
* vier Stellplätze im Außenbereich
* ein Garagenstellplatz
Weitere Informationen
Stichworte
Garage vorhanden, Stellplatz vorhanden, Wohnfläche: 600,00 m², Nutzfläche: 70,00 m², vermietbare Fläche: 600,00 m², Sonstige Fläche: 300,00 m²
Anbieter der Immobilie

Online-ID: 2jyr75c
Referenznummer: 2272
Finde Angebote wie dieses
Hier geht es zu unserem Impressum, den Allgemeinen Geschäftsbedingungen, den Hinweisen zum Datenschutz und nutzungsbasierter Online-Werbung.