

Stanglmaier Immobilien GmbH
Herr Peter Stanglmaier
081 ···
Nr. anzeigenPreise & Kosten
Provision für Käufer
Provisionsfrei für den Käufer
Abschreibung/Anlage
Denkmalschutz-Afa
Lage
Das angebotene, denkmalgeschützte Objekt befindet sich in 1-A-Lage der charmanten Stadt Freising, die für ihre historische Altstadt und ihre hohe Lebensqualität bekannt ist. Das obige Bild zeigt den Zustand um ca. 1905 mit ursprünglichem Zugang rechts. Die Umgebung zeichnet sich durch eine gelungene Mischung aus...
Das Renditeobjekt
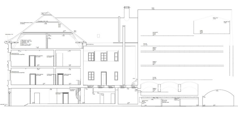
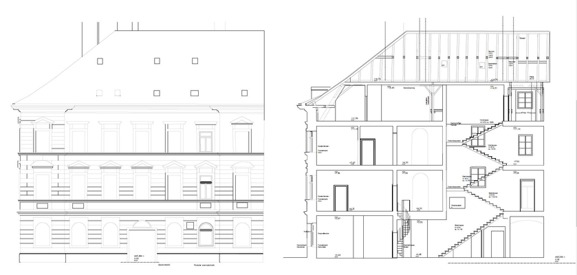
Baujahr
1886
Energie & Heizung
Warum sehe ich diese Anzeige? – Du siehst diese Anzeige basierend auf Ihrer Navigation auf unserer Website und den Suchkriterien, die du verwendet hast.
Energieausweis: für diesen Gebäudetyp nicht notwendig
Details
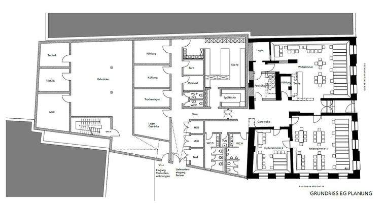
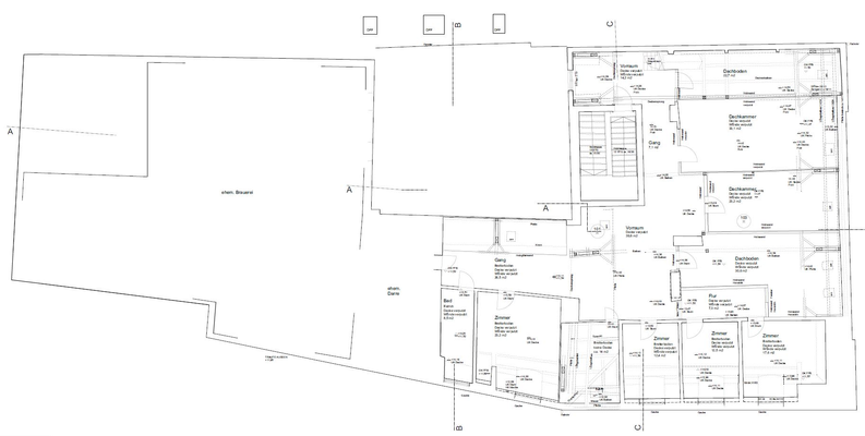
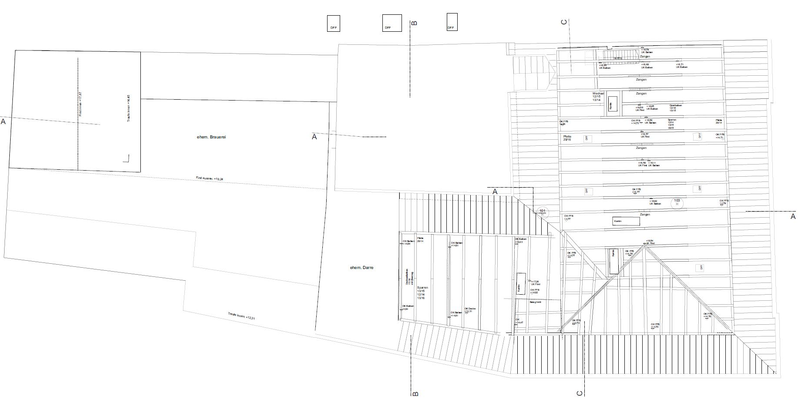
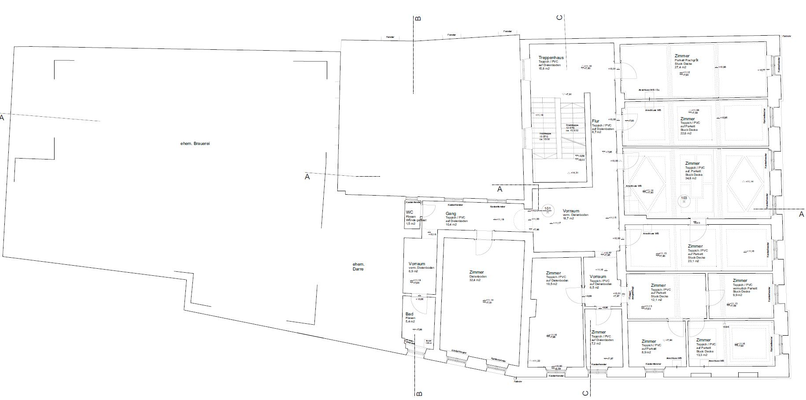
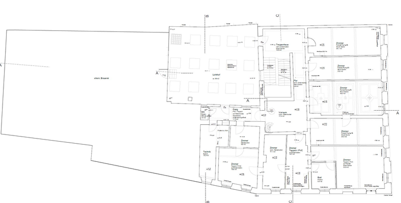
Objektbeschreibung
Das denkmalgeschützte Ensemble ist Stadtbild prägend im Herz der Freisinger Altstadt gelegen.
Das 806 m² große Grundstück ist vollständig bebaut. Die Brutto-Geschossfläche beträgt ca. 3.400 m². Allein der Bodenrichtwert beläuft sich zurzeit in dieser Lage auf 4.100,00 € / m². Zur Hauptstraße hin ist der stattliche...
Weitere Informationen
Stichworte
Gesamtfläche: 3.400,00 m², Bundesland: Bayern, Distanz zum Flughafen: 11.13, Distanz zum Hauptbahnhof: 0.78, Distanz zur Autobahn: 2.4
Anbieter der Immobilie

Stanglmaier Immobilien GmbH
Am Wörth 10, 85354 Freising

Online-ID: 2jz355y
Referenznummer: 3115027
Finde Angebote wie dieses
Hier geht es zu unserem Impressum, den Allgemeinen Geschäftsbedingungen, den Hinweisen zum Datenschutz und nutzungsbasierter Online-Werbung.