
Holzbau Bruno Kaiser GmbH
076 ···
Nr. anzeigenDieses Angebot ist Teil des Neubauprojekts
VIER EINFAMILIENHÄUSER IM BAUGEBIET WEIHERMATTEN IN MINSELN (RHEINFELDEN)
Preise & Kosten
Provision für Käufer
provisionsfrei
Lage
MINSELN IM NORDEN VON RHEINFELDEN
Im sonnigen kleinen Hochtal des Dinkelberges liegt Minseln ca. 5
km vom Stadtkern der großen Kreisstadt Rheinfelden entfernt. Die
Region am Hochrhein zwischen Bodensee und Basel ist gespickt
von landschaftlicher Schönheit und profitiert kulturell und wirtschaftlich
von der...
Das Haus
Kategorie
Einfamilienhaus
Geschosse
3 Geschosse
Baujahr
2026
Bezug
2026
Das Neubauprojekt
Energie & Heizung
Warum sehe ich diese Anzeige? – Du siehst diese Anzeige basierend auf Ihrer Navigation auf unserer Website und den Suchkriterien, die du verwendet hast.
Weitere Energiedaten
Haustyp
Holzhaus
Energieträger
Fernwärme
Heizungsart
Fußbodenheizung
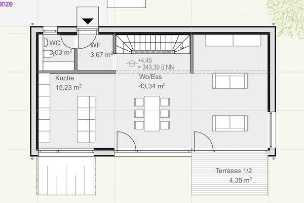
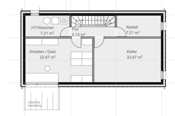
Details
Objektbeschreibung
Im Zuge der Umnutzung des ehemaligen Sägewerkes Hensler
entsteht im Rheinfeldener Ortsteil Minseln ein attraktives Baugebiet
mit 80 Wohneinheiten. Im Rahmen eines Modellprojekts
entstehen im unmittelbaren Umfeld des Sägewerksgebäudes
vier Einfamilienhäuser und zwei Reihenhäuser mit jeweils drei
Wohneinheiten...
Weitere Informationen
Zahlen & Fakten
Gebäudepreis: 635.000,-€
Grundstückspreis: 245.000,-€
PV-Anlage: 13.000,-€
Fernwärmeanschluss: 14.000,-€
Außenanlage: 50.000,-€
Provisionsfrei
KFWG förderfähig
Bauphase: In Planung
Baujahr: 2025 – 2026
Heizung: Fernwärme inkl. PV-Anlage
Fassade: Putzfassade...
Dokumente
Anbieter der Immobilie
Online-ID: 2jz9q5g
Finde Angebote wie dieses
Hier geht es zu unserem Impressum, den Allgemeinen Geschäftsbedingungen, den Hinweisen zum Datenschutz und nutzungsbasierter Online-Werbung.