

Maymar Real estate
Frau Yvette Boerner
003 ···
Nr. anzeigenPreise & Kosten
Provision für Käufer
provisionsfrei
Lage
NEU GEBAUTE WOHNANLAGE IN LA NUCIA
Neubau-Wohnanlage mit Wohnungen und Penthäusern mit Außenpool, Parkplatz, Abstellraum, Aufzug, Fitnessraum, Gemeinschafts-Spa mit beheiztem Innenpool, Sauna, Jacuzzi in La Nucia.
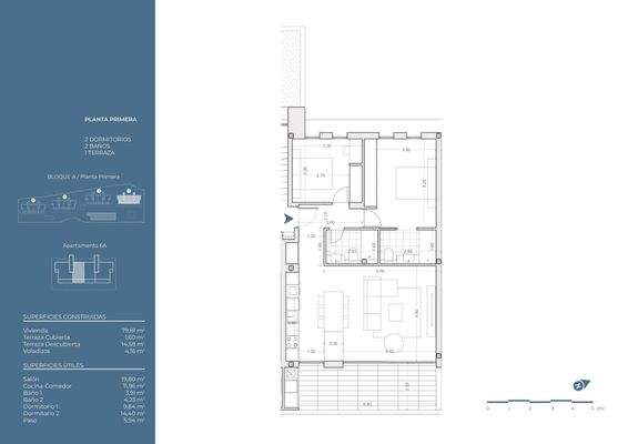
Moderne Wohnungen mit 2 und 3 Schlafzimmern, alle mit 2 Bädern, offener Küche mit geräumigem...
Die Wohnung
Kategorie
Apartment
Wohnanlage
Anbieter der Immobilie

Online-ID: 2jzcg5z
Referenznummer: MN243LN21
Finde Angebote wie dieses
Hier geht es zu unserem Impressum, den Allgemeinen Geschäftsbedingungen, den Hinweisen zum Datenschutz und nutzungsbasierter Online-Werbung.