

Normann Rodenacker Immobilien
Herrn Normann Rodenacker
015 ···
Nr. anzeigenPreise & Kosten
Provision für Käufer
3,57% des Kaufpreises.
Die Provision ist vom Käufer nach Unterschrift des Kaufvertrages fällig. Der Käufer verpflichtet sich eine eigene von ihm geschuldete Provision in Höhe von 3,57% des Kaufpreises zu zahlen.
Lage
Die Stadt Bergheim ist die Kreisstadt des Rhein-Erft-Kreises, sie liegt ca. 20 km Luftlinie von der Medienstadt Köln entfernt. Mit aktuell rund 60.000 Einwohnern zählt Bergheim zu den sogenannten Mittelstädten.
Die Anbindung an das Bahnliniennetz der Deutschen Bahn und ein weitläufiges Busliniennetz sorgen für eine...
Das Haus
Kategorie
Mehrfamilienhaus
Baujahr
1960
Bezug
nach Absprache
Derzeitige Nutzung
vermietet
Energie & Heizung
Warum sehe ich diese Anzeige? – Du siehst diese Anzeige basierend auf Ihrer Navigation auf unserer Website und den Suchkriterien, die du verwendet hast.
Energieausweistyp
Verbrauchsausweis
Gebäudetyp
Wohngebäude
Wesentliche Energieträger
ERDGAS_LEICHT
Gültigkeit
bis 05.03.2033
Effizienzklasse
D
Endenergieverbrauch
122,57 kWh/(m²·a)
Weitere Energiedaten
Energieträger
Gas
Heizungsart
Zentralheizung
Details
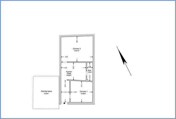
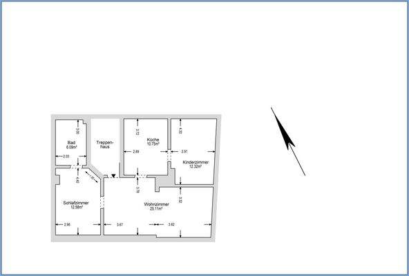
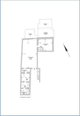
Objektbeschreibung
Es handelt sich um ein in den 50er Jahren errichtetes Gebäudeensemble, bestehend aus einem straßenbegleitenden Einfamilienhaus, aufgeteilt in 3 Wohneinheiten (Vorderhaus) sowie ein Hinterhaus mit 3 Gewerbeeinheiten auf einem 601 m² großen Grundstück.
Die Einheiten sind abgesehen von einer Werkstatt im EG des...
Ausstattung
- Massivbauweise, Vorderhaus unterkellert
- Steildächer mit Ziegeleindeckung, Flachdächer mit bituminöser Abdichtung
- Fassaden gedämmt, verputzt und gestrichen
- isolierverglaste Kunststoffrahmenfenster mit innenliegenden Sprossen
- Rollläden, teilweise elektrisch
- moderne, hell geflieste Bäder bzw...
Weitere Informationen
Sonstiges
Die angegebenen Informationen sowie jegliche Objektunterlagen sind ohne Gewähr und basieren ausschließlich auf Eigentümerangaben.
Für die Richtigkeit, Aktualität und Vollständigkeit der Angaben übernehmen wir keine Gewähr. Zwischenvermarktung bleibt vorbehalten. Wir behalten uns vor, bei Weitergabe...
Anbieter der Immobilie
Normann Rodenacker Immobilien
Kattenberg 35, 50259 Pulheim

Online-ID: 2jzsa5r
Referenznummer: RI-24-04-0943
Finde Angebote wie dieses
Hier geht es zu unserem Impressum, den Allgemeinen Geschäftsbedingungen, den Hinweisen zum Datenschutz und nutzungsbasierter Online-Werbung.