
Müller Merkle Immobilien GmbH
Frau Stefanie Koch
Kontaktiere den Anbieter schriftlich, es ist keine Telefonnummer hinterlegt.
Dieses Angebot ist Teil des Neubauprojekts
FRIEDA'S
Preise & Kosten
Kaution
4440
Warum sehe ich diese Anzeige? – Du siehst diese Anzeige basierend auf Ihrer Navigation auf unserer Website und den Suchkriterien, die du verwendet hast.
Lage
Public transport, local amenities, and schools - everything is within easy and quick reach. The nearest bus stop is just 250 meters away, while S-Bahn and U-Bahn stations are reachable within approximately 500 meters. Within a 750-meter radius, supermarkets like Lidl, Aldi, EDEKA, and Netto cover all your daily shopping...
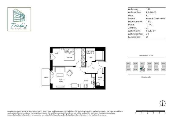
Die Wohnung
Wohnungslage
1. Geschoss
Bezug
ab sofort
Wohnanlage
Das Neubauprojekt
Energie & Heizung
Warum sehe ich diese Anzeige? – Du siehst diese Anzeige basierend auf Ihrer Navigation auf unserer Website und den Suchkriterien, die du verwendet hast.
Energieausweistyp
Bedarfsausweis
Gebäudetyp
Wohngebäude
Baujahr laut Energieausweis
2025
Wesentliche Energieträger
Fernwärme
Gültigkeit
01.06.2025 bis 01.06.2035
Effizienzklasse
B
Endenergiebedarf
55,30 kWh/(m²·a)
Weitere Energiedaten
Energieträger
Fernwärme
Details
Objektbeschreibung
A modern residential quarter is being developed on an area of approximately 24,366 m² under the name FRIEDAS Berlin. The entire new construction complex in Friedenauer Höhe comprises six buildings with a total of 396 apartments, which will be completed in three construction phases. In the first phase, 132 apartments ranging...
Ausstattung
Clear design and state-of-the-art features offer flexibility and individual freedom in shaping the living spaces. Well-structured floor plans and thoughtfully designed spatial concepts, along with open-plan living areas and floor-to-ceiling windows that allow ample natural light, create a welcoming and comfortable...
Preisinformation
1 Stellplatz, Miete: 130,00 EUR
Weitere Informationen
Sonstiges
We kindly ask you to send appointment requests via the contact form.
The images shown are non-binding visualizations and photos of the show apartment. You are welcome to experience FRIEDA'S for yourself during a viewing of the show apartment.
DISCLAIMER:
This advertisement is for informational...
Anbieter der Immobilie
Müller Merkle Immobilien GmbH
Galileistraße 1, 69115 Heidelberg
Frau Stefanie Koch
Dein Ansprechpartner
Kontaktiere den Anbieter schriftlich, es ist keine Telefonnummer hinterlegt.
Online-ID: 2jztz5k
Referenznummer: K1-W009#EpnLD
Finde Angebote wie dieses
Hier geht es zu unserem Impressum, den Allgemeinen Geschäftsbedingungen, den Hinweisen zum Datenschutz und nutzungsbasierter Online-Werbung.