

Erich Panik Immobilien GmbH
Herr Nils Panik
038 ···
Nr. anzeigenPreise & Kosten
Provision für Käufer
Mit der Inanspruchnahme der Maklerdienste kommt ein Maklervertrag zustande, aufgrund dessen der Auftraggeber (Käufer) verpflichtet ist, an Erich Panik Immobilien eine Provision in Höhe von 3,57 % des Kaufpreises incl. Mwst. zu zahlen. Stand: 23.6.2025
Lage
Top-Wohnlage im Rostocker Villenviertel in Laufnähe zum Hauptbahnhof mit ausgezeichneter Verkehrsanbindung über Bus, Straßenbahn, S-Bahn, sowie Regionalzug- und Fernverkehr.
Im Nahbereich befinden sich Versorgungseinrichtungen, Hotels und Dienstleistungen sowie Bildungsstätten. Im Umfeld befinden sich großteils...
Die Wohnung
Wohnungslage
Erdgeschoss
Bezug
sofort
Wohnanlage
Energie & Heizung
Warum sehe ich diese Anzeige? – Du siehst diese Anzeige basierend auf Ihrer Navigation auf unserer Website und den Suchkriterien, die du verwendet hast.
Energieausweistyp
Verbrauchsausweis
Gebäudetyp
Wohngebäude
Wesentliche Energieträger
Fernwärme
Gültigkeit
23.11.2017 bis 22.11.2027
Effizienzklasse
D
Endenergieverbrauch
110,60 kWh/(m²·a)
Weitere Energiedaten
Energieträger
Fernwärme
Details
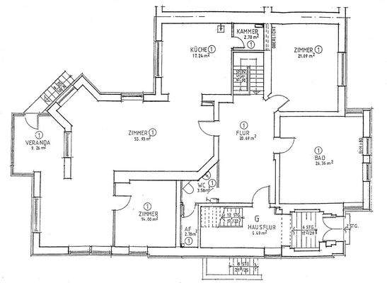
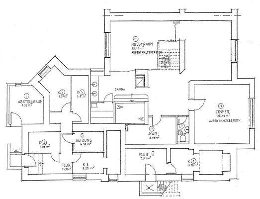
Objektbeschreibung
Objektbeschreibung
Im Jahr 1998 in einem Villengebäude um das Jahr 1906 erbaute Eigentumswohnung in 2 Etagen. Im Erdgeschoß mit ca. 180 m² Wohnfläche befinden sich ein großzügiger Flurbereich, mit Zugang zum komfortablen Wohnzimmer mit Veranda und Treppenzugang zum hausgemeinschaftlich genutzten Garten sowie Küche...
Weitere Informationen
Besichtigungstermine
Nach Vereinbarung.
Stichworte
Sonstiges: frei werdend
Anbieter der Immobilie
Erich Panik Immobilien GmbH
Hermannstr. 24, 18055 Rostock

Online-ID: 2k26b5j
Referenznummer: 3096
Finde Angebote wie dieses
Hier geht es zu unserem Impressum, den Allgemeinen Geschäftsbedingungen, den Hinweisen zum Datenschutz und nutzungsbasierter Online-Werbung.