
Friedrich Schauer GmbH
Herr Thomas Kleinhans
080 ···
Nr. anzeigenPreise & Kosten
Provision für Käufer
provisionsfrei
Lage
Tägliches Pendeln bequem und stressfrei – München Ost in weniger als 40 Minuten
Die schnelle Zugverbindung von Raubling zum Ostbahnhof in München ermöglicht es Ihnen, die bayerische Landeshauptstadt in nur 38 Minuten zu erreichen. Hervorragende Anbindung für Pendler und all jene, die die Vorzüge der Stadt genießen möchten...
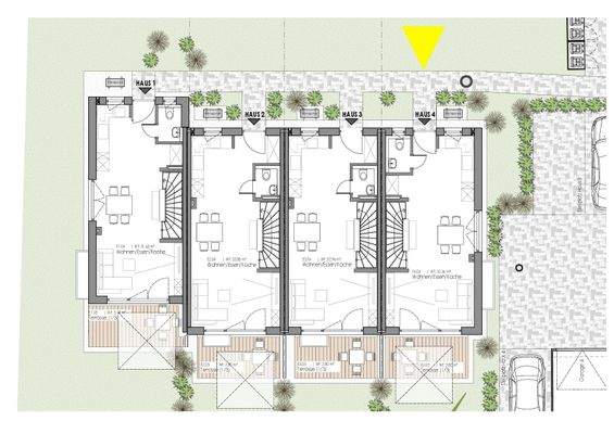
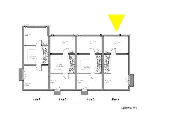
Das Haus
Kategorie
Reihenendhaus
Geschosse
4 Geschosse
Baujahr
2025
Energie & Heizung
Warum sehe ich diese Anzeige? – Du siehst diese Anzeige basierend auf Ihrer Navigation auf unserer Website und den Suchkriterien, die du verwendet hast.
Energieausweistyp
Bedarfsausweis
Gebäudetyp
Wohngebäude
Baujahr laut Energieausweis
2024
Wesentliche Energieträger
Strom
Gültigkeit
16.08.2024 bis 16.08.2034
Effizienzklasse
A+
Endenergiebedarf
17,00 kWh/(m²·a)
Weitere Energiedaten
Haustyp
Massivhaus
Energieträger
Elektro
Heizungsart
Fußbodenheizung, Luft-/Wasser-Wärmepumpe
Details
Objektbeschreibung
Ihr neues Familiennest – Komfortables Zuhause in ruhiger Lage
In einer ruhigen und sonnigen Wohnlage, von Raubling, im Ortsteil Nicklheim, in der Schwarzenbergstraße 4, errichten wir einen attraktiven Vierspänner in massiver Ziegelbauweise mit hochwertiger Ausstattung.
Der Münchner Ostbahnhof ist von hier in weniger...
Ausstattung
Highlights der Ausstattung
• Kontrollierte Wohnraumentlüftung mit Wärmerückgewinnung
• Ökologisch wohngesunde massive Ziegelbauweise
• Heizen mit effizienter Luftwasserwärmepumpe
• Moderne, pflegeleichte Kunststofffenster, außen grau, innen weiß
• Parkett in allen Wohnräumen im EG, OG...
Weitere Informationen
Aktueller Hinweis
Nutzen Sie diese Gelegenheit, bevor unsere Häuser im November vermietet werden.
Bei Fragen zur Finanzierung unterstützen wir Sie gerne. Wenn Sie aktuell über einen Kauf nachdenken, empfehlen wir sich zeitnah zu melden, damit wir gemeinsam die passende Lösung finden.
Firmenphilosophie
Seit...
Dokumente
Anbieter der Immobilie
Friedrich Schauer GmbH
Obere Dorfstraße 12, 83101 Rohrdorf
Online-ID: 2k2d559
Finde Angebote wie dieses
Hier geht es zu unserem Impressum, den Allgemeinen Geschäftsbedingungen, den Hinweisen zum Datenschutz und nutzungsbasierter Online-Werbung.