

Stanglmaier Immobilien GmbH
Frau Jana Stanglmaier
081 ···
Nr. anzeigenPreise & Kosten
Provision für Käufer
2,38 % inkl. MwSt.
Lage
Leben zwischen Naturidylle und Metropolennähe.
Die Immobilie befindet sich in ruhiger, naturnaher Lage in Kranzberg, im nördlichen Landkreis Freising. Eingebettet in eine hügelige Landschaft mit Wiesen, Feldern und Waldflächen, bietet das Anwesen ein hohes Maß an Privatsphäre und Lebensqualität. Die Umgebung ist...
Das Haus
Kategorie
Einfamilienhaus
Baujahr
1975
Bezug
kurzfristig
Energie & Heizung
Warum sehe ich diese Anzeige? – Du siehst diese Anzeige basierend auf Ihrer Navigation auf unserer Website und den Suchkriterien, die du verwendet hast.
Energieausweistyp
Bedarfsausweis
Gebäudetyp
Wohngebäude
Wesentliche Energieträger
Öl
Gültigkeit
29.07.2025 bis 28.07.2035
Effizienzklasse
E
Endenergiebedarf
149,98 kWh/(m²·a)
Weitere Energiedaten
Energieträger
Öl
Heizungsart
Fußbodenheizung, offener Kamin
Details
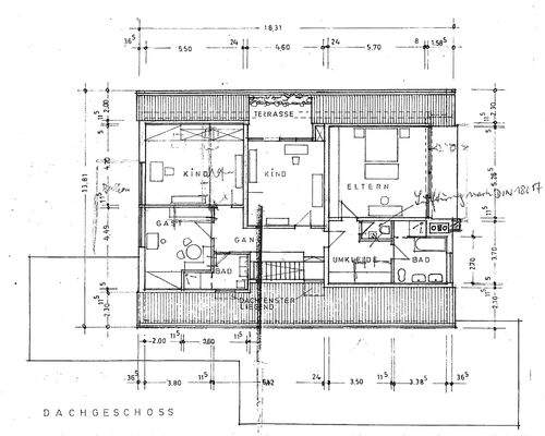
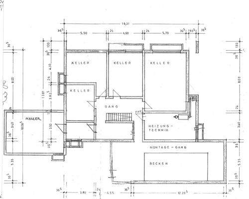
Objektbeschreibung
Ein architektonisches Juwel auf parkähnlichem Anwesen - stilvoll wohnen auf ca. 3.251 m² Grundstück.
Willkommen zu einer Villa, die in ihrer Einzigartigkeit und Großzügigkeit ihresgleichen sucht. Dieses außergewöhnliche Anwesen wurde 1975 von dem renommierten Freisinger Architekten Hans Hofmann in hochwertiger...
Ausstattung
Mit insgesamt sechs Schlafzimmern und drei Badezimmern bietet diese großzügige Liegenschaft ein hohes Maß an Platz und Flexibilität - ideal für das Familienleben oder individuelle Nutzungskonzepte. Die Ausstattung ist vielseitig: In einigen Räumen wurden Teppichböden verlegt, viele weitere Bereiche sind gefliest. Das...
Preisinformation
2 Garagenstellplätze
Weitere Informationen
Sonstiges
Nach Aussage der Gemeinde ist ein weiteres Baurecht auf dem Grundstück durchaus denkbar.
Die angegebene Wohnfläche beinhaltet den "Wellness-Bereich" ohne das Schwimmbecken sowie anteilig Balkon- und Terrassenflächen.
Stichworte
Garage vorhanden, Nutzfläche: 304,23 m², Anzahl der Schlafzimmer: 6...
Anbieter der Immobilie

Stanglmaier Immobilien GmbH
Am Wörth 10, 85354 Freising

Online-ID: 2k2hu5z
Referenznummer: 534
Finde Angebote wie dieses
Hier geht es zu unserem Impressum, den Allgemeinen Geschäftsbedingungen, den Hinweisen zum Datenschutz und nutzungsbasierter Online-Werbung.