
Popp Immobilien
Frau Inge Popp
+49 ···
Nr. anzeigenPreise & Kosten
Provision für Käufer
2,38%
Lage
Feuchtwangen zeichnet sich durch seine charmante Altstadt sowie seine ruhige, familienfreundliche Atmosphäre aus. Die Stadt ist bekannt für ihre historische Architektur, darunter das beeindruckende Stadttor und die gut erhaltenen Fachwerkhäuser. Die Lage bietet eine perfekte Mischung aus ländlicher Idylle und guter Anbindung...
Das Renditeobjekt
Kategorie
Mehrfamilienhaus
Baujahr
1959
Frei ab
vermietet
Energie & Heizung
Warum sehe ich diese Anzeige? – Du siehst diese Anzeige basierend auf Ihrer Navigation auf unserer Website und den Suchkriterien, die du verwendet hast.
Energieausweistyp
Verbrauchsausweis
Gebäudetyp
Wohngebäude
Baujahr laut Energieausweis
1997
Wesentliche Energieträger
Öl
Gültigkeit
19.05.2025 bis 18.05.2035
Effizienzklasse
C
Endenergieverbrauch
87,30 kWh/(m²·a)
Weitere Energiedaten
Energieträger
Öl
Heizungsart
Fußbodenheizung, Zentralheizung
Details
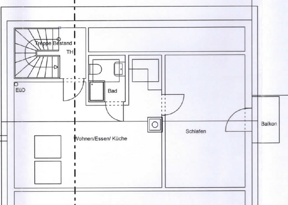
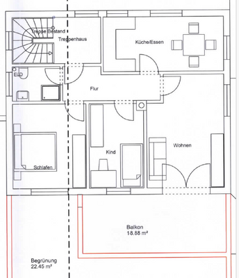
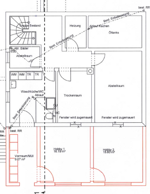
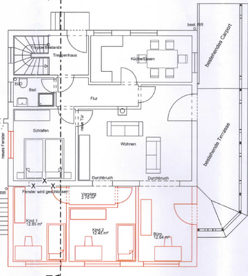
Objektbeschreibung
Dieses kernsanierte 4-Familienhaus befindet sich in einer ruhigen und dennoch zentralen Lage in Feuchtwangen. Das im Jahr 1959 erbaute Gebäude wurde ab 2012 saniert und im Jahr 2017 durch einen Anbau im Keller und Erdgeschoss erweitert. Der Vollwärmeschutz an der Westseite wurde im Jahr 2012 angebracht, um die...
Ausstattung
- Baujahr 1959
- Öl-Zentralheizung mit 3.00L Tank (1997)
- Elektrik erneuert (2012)
- teilw. Leitungen erneuert (2012)
- Grundstücksfläche ca. 700m²
- Anbau KG und EG (2017)
- Hof neu gepflastert (2017)
- Vollwärmeschutz an der Westseite (2012)
- Fassade gestrichen (2012)
- 4 separate Wohneinheiten...
Preisinformation
1 Carportplatz
2 Stellplätze
1 Garagenstellplatz
Ist-Mieteinnahmen pro Jahr: 30.000,00 EUR
Weitere Informationen
Sonstiges
Abmessungen und Preisangaben beruhen auf Angaben des Verkäufers (oder eines Dritten).
Eine Haftung für die Richtigkeit oder Vollständigkeit der Angaben wird daher nicht übernommen.
Alle Angaben wurden nach bestem Wissen und Gewissen gemacht.
Alle Immobilienangebote sind freibleibend und vorbehaltlich...
Anbieter der Immobilie
Popp Immobilien
Sonnenseestrasse 10, 91604 Flachslanden
Online-ID: 2k2tf54
Referenznummer: 209 (1/209)
Finde Angebote wie dieses
Hier geht es zu unserem Impressum, den Allgemeinen Geschäftsbedingungen, den Hinweisen zum Datenschutz und nutzungsbasierter Online-Werbung.