

Kominos Immobilien
Herr Petros Kominos
027 ···
Nr. anzeigenPreise & Kosten
Provision für Käufer
provisionsfrei
Lage
Das Haus ist nur knapp 1,5 Kilometer vom Stadtzentrum entfernt. Die ruhige und familienfreundliche Wohnlage besticht durch einen weiten Ausblick über die Stadt und die grüne Umgebung. Die Innenstadt von Attendorn mit Einkaufsmöglichkeiten, Schulen, Ärzten und Gastronomie ist in wenigen Minuten erreichbar.
Dank der guten...
Das Haus
Kategorie
Mehrfamilienhaus
Baujahr
1970
Energie & Heizung
Warum sehe ich diese Anzeige? – Du siehst diese Anzeige basierend auf Ihrer Navigation auf unserer Website und den Suchkriterien, die du verwendet hast.
Weitere Energiedaten
Energieträger
Öl
Heizungsart
Ofen, offener Kamin
Details
Objektbeschreibung
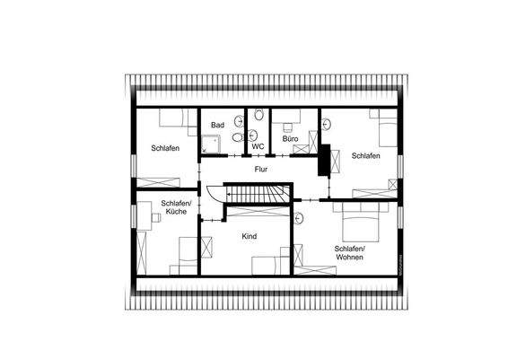
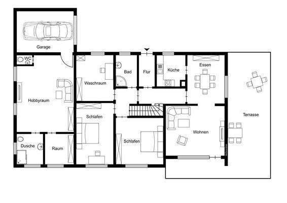
Dieses großzügige Zweifamilienhaus aus dem Jahr 1970 vereint solides Wohnen, clevere Raumaufteilung und attraktive Vermietungspotenziale auf ideale Weise. Die Hauptimmobilie erstreckt sich über das Erdgeschoss sowie das ausgebaute, genehmigte Dachgeschoss und bietet mit insgesamt rund 186?m² Wohnfläche viel Platz für Familien...
Ausstattung
- Zweifamilienhaus mit Option auf 2 weitere Wohneinheiten
- Massive Bauweise
- Grundstücksfläche:1.308qm
- Baujahr 1970
- Wohnflächen:
Wohnung 1: EG: ca. 101,69 qm + 84,41 qm DG = ca. 186,1qm / eigener Eingang
Wohnung 2: KG: ca. 62,59qm / eigener Eingang
mögliche Wohnung 3: Ausgebaut als Wohnung aber...
Preisinformation
6 Stellplätze
2 Garagenstellplätze
Weitere Informationen
Sonstiges
Weitere Informationen, Grundrisse und Fotos zu dieser und anderen Immobilien finden Sie auf kominos-immobilien.de
Sie haben Fragen zur Finanzierung / Förderfähigkeit... Sprechen Sie uns an. Wir prüfen die Möglichkeit auf Finanzierung/Förderung für Sie.
Gerne stellen wir Ihnen diese Immobilie auch...
Anbieter der Immobilie
Kominos Immobilien
Niederste Str. 4, 57439 Attendorn

Online-ID: 2k2wm5m
Referenznummer: 4181
Finde Angebote wie dieses
Hier geht es zu unserem Impressum, den Allgemeinen Geschäftsbedingungen, den Hinweisen zum Datenschutz und nutzungsbasierter Online-Werbung.