

ZDM Immobilien GmbH
Frau Lana Perova
015 ···
Nr. anzeigenPreise & Kosten
Provision für Käufer
provisionsfrei
Abschreibung/Anlage
als Kapitalanlage geeignet
Lage
Lappersdorf bietet urbanes Wohnen mit direkter Nähe zur Regensburger Altstadt. Nur 1.500 Meter vom Dom entfernt wohnen Sie ruhig und zugleich zentral. Schulen, Kindergärten, Ärzte, Einkaufsmöglichkeiten und Freizeitangebote befinden sich in unmittelbarer Nähe. Die Donau, das Regental und die kulturellen Highlights Regensburgs...
Die Wohnung
Wohnungslage
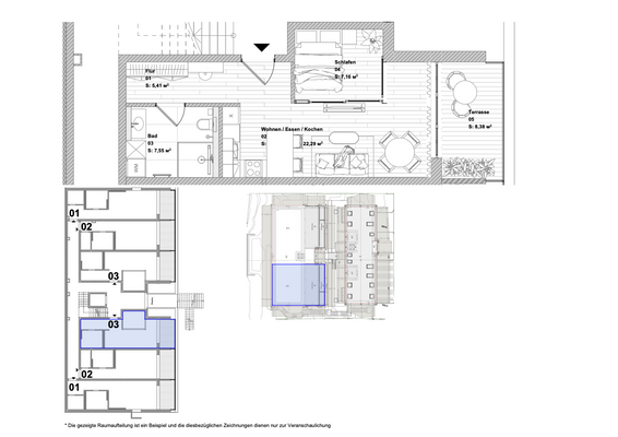
Erdgeschoss
Bezug
2027
Derzeitige Nutzung
frei
Wohnanlage
Energie & Heizung
Warum sehe ich diese Anzeige? – Du siehst diese Anzeige basierend auf Ihrer Navigation auf unserer Website und den Suchkriterien, die du verwendet hast.
Energieausweistyp
Bedarfsausweis
Gebäudetyp
Wohngebäude
Wesentliche Energieträger
Strom
Effizienzklasse
A+
Endenergiebedarf
12,70 kWh/(m²·a)
Weitere Energiedaten
Energieträger
Elektro
Haustyp
KfW 40
Heizungsart
Fußbodenheizung, Luft-/Wasser-Wärmepumpe
Details
Objektbeschreibung
Objektbeschreibung
Diese moderne und hochwertig ausgestattete Erdgeschosswohnung begeistert mit stilvollem Design, effizienter Raumaufteilung und einer herrlichen Terrasse – perfekt für Singles, Paare oder Pendler mit Sinn für Qualität und Komfort.
Auf ca. 47?m² Wohnfläche bietet die Wohnung alles, was das Herz...
Weitere Informationen
Besichtigungstermine
Kontaktieren Sie uns gerne telefonisch oder per E-Mail – wir freuen uns auf Ihre Anfrage und beraten Sie persönlich!
Stichworte
Versorgung: Städtische Wasserversorgung
Anbieter der Immobilie
ZDM Immobilien GmbH
Industriestraße 23, 93077 Bad Abbach

Online-ID: 2k2zq5f
Referenznummer: WE 03 BK II
Finde Angebote wie dieses
Hier geht es zu unserem Impressum, den Allgemeinen Geschäftsbedingungen, den Hinweisen zum Datenschutz und nutzungsbasierter Online-Werbung.