
IKK Invest GmbH
Frau Steffi Köppen
015 ···
Nr. anzeigenPreise & Kosten
Provision für Käufer
3,57 % zzgl. MwSt.
Lage
Willkommen in Krakow am See - einem idyllischen Ort, der Natur, Erholung und Lebensqualität vereint! Diese charmante Kleinstadt liegt am Rande der Mecklenburgischen Seenplatte und bietet eine perfekte Kombination aus ländlichem Flair und moderner Infrastruktur.
Lage und Umgebung:
Krakow am See ist von einer...
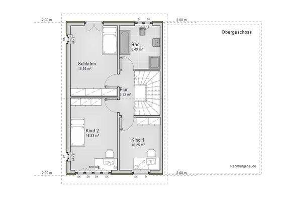
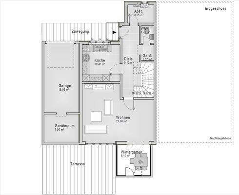
Das Haus
Kategorie
Doppelhaushälfte
Baujahr
1992
Bezug
sofort
Energie & Heizung
Warum sehe ich diese Anzeige? – Du siehst diese Anzeige basierend auf Ihrer Navigation auf unserer Website und den Suchkriterien, die du verwendet hast.
Energieausweistyp
Verbrauchsausweis
Gebäudetyp
Wohngebäude
Baujahr laut Energieausweis
1992
Wesentliche Energieträger
GAS
Gültigkeit
bis 05.03.2035
Effizienzklasse
B
Endenergieverbrauch
64,50 kWh/(m²·a)
Weitere Energiedaten
Energieträger
Gas
Heizungsart
Zentralheizung
Details
Objektbeschreibung
Willkommen in Ihrem neuen Zuhause! Dieses charmante Doppelhaus bietet Ihnen und Ihrer Familie alles, was Sie sich wünschen können.Dieses Doppelhaus besticht durch seinen zeitlosen Charm und seine wunderbare Lage im Luftkurort Krakow am See am Rande der mecklenburgischen Seenplatte. Der einladende Flur mit viel Platz für...
Preisinformation
1 Garagenstellplatz
Weitere Informationen
Stichworte
Nutzfläche: 36,00 m², Anzahl der Schlafzimmer: 4, Anzahl der Badezimmer: 2, Anzahl der separaten WCs: 1, Anzahl Terrassen: 1, 2 Etagen, Distanz zum Kindergarten: 1.00, Distanz zur Grundschule: 1.00, Distanz zur Realschule: 1.00, Distanz zur nächsten Einkaufsmöglichkeit: 1.00, Distanz zur Autobahn: 9.00, Distanz...
Dokumente
Anbieter der Immobilie
IKK Invest GmbH
Stübkamp 31, 22885 Barsbüttel
Online-ID: 2k3395l
Referenznummer: 20313
Finde Angebote wie dieses
Hier geht es zu unserem Impressum, den Allgemeinen Geschäftsbedingungen, den Hinweisen zum Datenschutz und nutzungsbasierter Online-Werbung.