
Immobilien Trs
Frau Ramona Wagner
004 ···
Nr. anzeigenPreise & Kosten
Provision für Käufer
Bitte beachte, das Angebot beinhaltet bei Vertragsabschluss die Zahlung einer Provision. Weitere Informationen erhältst Du vom Anbieter.
Lage
Schattwald - ein Dorf mit 470 Einwohnern im Tiroler Bezirk Reutte ist der westlichste von sechs Orten im Tannheimer Tal, nahe der deutschen Grenze. Auf 1100 Meter Meereshöhe gelegen, punktet diese Gemeinde mit der Natur der umliegenden Berglandschaft wie dem Hausberg "Wannenjoch".
Zahlreiche Veranstaltungen finden das...
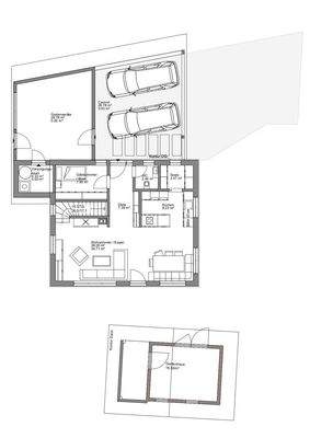
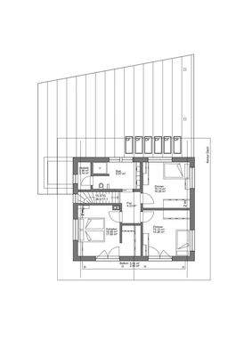
Das Haus
Kategorie
Einfamilienhaus
Baujahr
2016
Bezug
Vereinbarung
Energie & Heizung
Warum sehe ich diese Anzeige? – Du siehst diese Anzeige basierend auf Ihrer Navigation auf unserer Website und den Suchkriterien, die du verwendet hast.
Heizwärmebedarf (HWB)
60,00 kWh/(m²·a)
Gesamtenergieeffizienz (fGEE)
0,85
Weitere Energiedaten
Heizungsart
Fußbodenheizung, offener Kamin
Details
Objektbeschreibung
Willkommen in der Landvilla "Bergpanorama"!
Stellen Sie sich vor, Sie leben inmitten einer atemberaubenden Naturkulisse auf 1100 Metern Höhe, umgeben von sanften, blühenden Wiesen und einem unvergleichlichen Panoramablick auf majestätische, schneebedeckte Gipfel. Hier, wo die Luft klar und die Stille erholsam ist, erwartet...
Ausstattung
Das ökologisch errichtete Klimahaus nach RAL Gütezeichen eines zertifizierten Allgäuer Holzhausbauers bietet baubiologisch geprüftes Wohnen mit Putz auf Mineralbasis für optimales Wohnraumklima und somit attraktiver Gesamtenergieeffizienzklasse A!
Der Charakter des Gebäudes ist gemütlich - ländlich, die Ausstattung ist...
Preisinformation
1 Carportplatz
Weitere Informationen
Sonstiges
Wir haben Ihr Interesse geweckt? Senden Sie uns gerne eine Mail an info@trs.at und erfahren Sie nähere Details.
Der Verkauf dieser Immobilie erfolgt in Kooperation mit der IMMORIST GmbH in Salzburg.
Stichworte
Carport vorhanden, Breitband Zugang: ADSL, Nutzfläche: 208,00 m², Anzahl der...
Anbieter der Immobilie
Online-ID: 2k3695n
Referenznummer: 2025/78905
Finde Angebote wie dieses
Günstige Immobilienfinanzierung einfach online berechnen
Persönliches Angebot berechnenWarum sehe ich diese Werbung? – Du siehst diese Werbung basierend auf Deiner Navigation auf unserer Website und der von Dir verwendeten Suchkriterien.
Diese Werbung wird bezahlt von durchblicker
Werbung melden
Hier geht es zu unserem Impressum, den Allgemeinen Geschäftsbedingungen, den Hinweisen zum Datenschutz und nutzungsbasierter Online-Werbung.