

Next Immobilien
Herr/Frau Henry Gaebel
033 ···
Nr. anzeigenPreise & Kosten
Provision für Käufer
3,57 % (incl. 19 % MwSt.) vom beurkundeten Kaufpreis
Lage
Das Haus liegt in einer ruhigen Seitenstraße in Berlin Adlershof. Ihre Kinder können von hier aus den Kindergarten oder die Schule bis zur 13. Klasse zu Fuß erreichen. Mehrere Restaurants und kleine Geschäfte befinden sich auch in der Nähe.
Der Standort bietet eine sehr gute Infrastruktur. In nur ca. 4 Gehminuten...
Das Haus
Kategorie
Einfamilienhaus
Baujahr
2002
Energie & Heizung
Warum sehe ich diese Anzeige? – Du siehst diese Anzeige basierend auf Ihrer Navigation auf unserer Website und den Suchkriterien, die du verwendet hast.
Energieausweistyp
Verbrauchsausweis
Gebäudetyp
Wohngebäude
Baujahr laut Energieausweis
2002
Effizienzklasse
F
Endenergieverbrauch
161,00 kWh/(m²·a)
Details
Objektbeschreibung
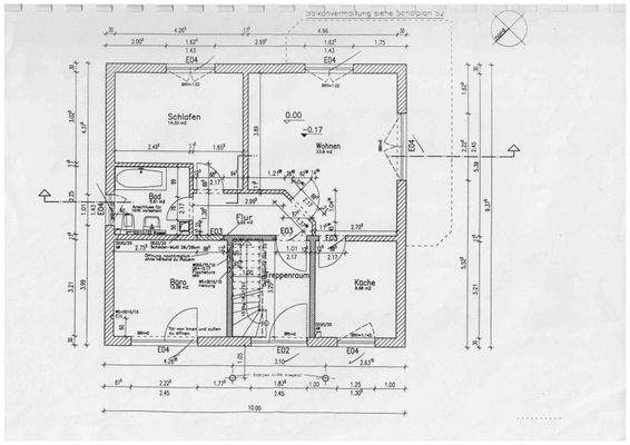
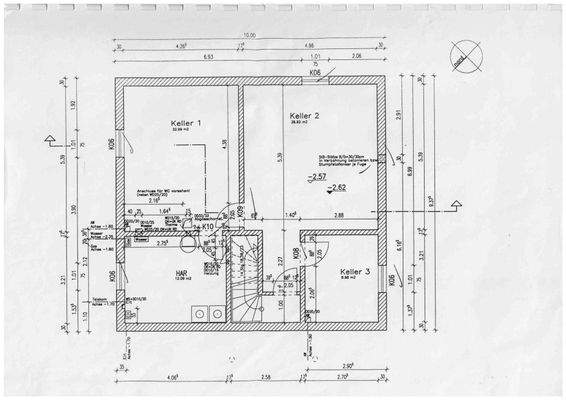
WOHN- UND NUTZFLÄCHENÜBERSICHT
Die Gesamtwohnfläche des Hauses beträgt ca. 155,13 m², ergänzt durch ein beheiztes Kellergeschoss mit einer Nutzfläche von ca. 73,68 m². Die Flächen verteilen sich wie folgt:
- Erdgeschoss: ca. 79,13 m² Wohnfläche (inklusive 25 % der Terrassenfläche)
- Dachgeschoss: ca. 76 m²...
Weitere Informationen
Sonstiges
Wir beantworten Anfragen nur unter Angabe des vollständigen Namens, der Adresse und der Telefonnummer des Interessenten.
Wenn wir Sie unter der angegebenen Telefonnummer nicht erreichen, können wir keinen Besichtigungstermin vereinbaren.
Die Angaben in diesem Exposé basieren auf uns zur Verfügung...
Dokumente
Anbieter der Immobilie
Next Immobilien
Berliner Straße 146, 14467 Potsdam

Online-ID: 2k36w5n
Referenznummer: 414#5ykbFT
Finde Angebote wie dieses
Hier geht es zu unserem Impressum, den Allgemeinen Geschäftsbedingungen, den Hinweisen zum Datenschutz und nutzungsbasierter Online-Werbung.