
Living Blue Mallorca
971 ···
Nr. anzeigenPreise & Kosten
Provision für Käufer
Bitte beachte, das Angebot kann bei Vertragsabschluss die Zahlung einer Provision beinhalten. Weitere Informationen erhältst Du vom Anbieter.
Das Haus
Baujahr
0
Details
Objektbeschreibung
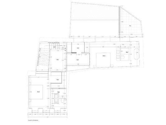
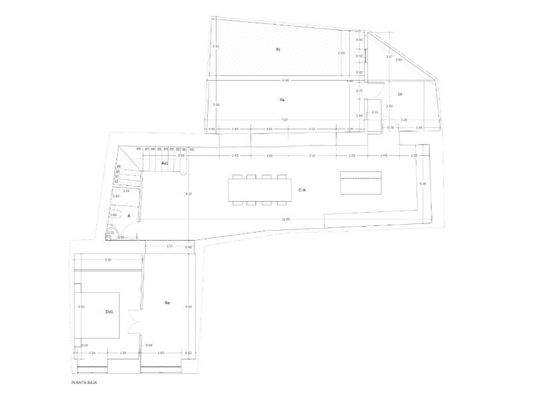
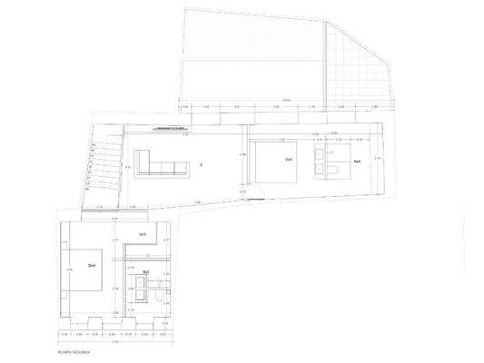
Im historischen Zentrum von Felanitx, nur wenige Schritte vom Marktplatz und dem Rathaus entfernt, bietet dieses Stadthaus eine besondere Gelegenheit für Käufer, die ein individuelles Projekt mit Charakter und Potenzial realisieren möchten. Die Baugenehmigung liegt bereits vor, ebenso wie genehmigte Architektenpläne, sodass...
Weitere Informationen
Stichworte
Anzahl der Schlafzimmer: 5, Anzahl der Badezimmer: 4, Bundesland: Mallorca
Anbieter der Immobilie
Online-ID: 2k3hj5x
Referenznummer: 6672
Finde Angebote wie dieses
Hier geht es zu unserem Impressum, den Allgemeinen Geschäftsbedingungen, den Hinweisen zum Datenschutz und nutzungsbasierter Online-Werbung.