

LBS Immobilien GmbH
Frau Marion Angnes
068 ···
Nr. anzeigenPreise & Kosten
Provision für Käufer
3,57 % inkl. MwSt.
Lage
Neunkirchen ist eine saarländische Kreisstadt an der Blies, etwa 20 km von der Landeshauptstadt Saarbrücken entfernt.
Mit etwa 47.000 Einwohnern ist es nach Saarbrücken die zweigrößte Stadt des Saarlandes.
Die Innenstadt von Neunkirchen ist eine vielfältige Region mit einer Mischung aus Wohn-, Gewerbe- und...
Das Haus
Kategorie
Mehrfamilienhaus
Baujahr
1960
Bezug
sofort
Energie & Heizung
Warum sehe ich diese Anzeige? – Du siehst diese Anzeige basierend auf Ihrer Navigation auf unserer Website und den Suchkriterien, die du verwendet hast.
Energieausweistyp
Verbrauchsausweis
Gebäudetyp
Wohngebäude
Baujahr laut Energieausweis
1960
Wesentliche Energieträger
Gas
Gültigkeit
01.07.2025 bis 30.06.2035
Effizienzklasse
C
Endenergieverbrauch
98,66 kWh/(m²·a) - Warmwasser enthalten
Weitere Energiedaten
Haustyp
Massivhaus
Energieträger
Gas
Heizungsart
Zentralheizung
Details
Objektbeschreibung
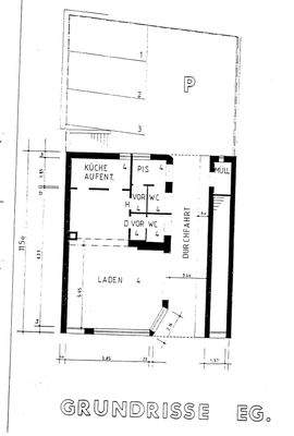
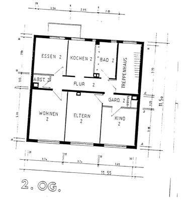
Inmitten von Neunkirchen in zentraler Lage zur Innenstadt befindet sich das Mehrfamilienhaus mit sechs Wohneinheiten und einer Gewerbeeinheit.
Die Immobilie befindet sich in einem guten Zustand.
Diverse Renovierungen haben in den Jahren 2024, 2021 und 2015 stattgefunden.
Das Haus befindet sich momentan im...
Ausstattung
Individuelle Ausstattungsmerkmale:
- Innenhof für Parkplätze oder sonstiges
- Außenstellplatz
2024
Gasheizung neu
2021
Dacheindeckung neu, teilweise gedämmt
2015
Bäder erneuert
Elektrik neu
Fenster älter, doppeltverglast Kunststoff
Weitere Informationen
Stichworte
Stellplatz vorhanden, Nutzfläche: 60,00 m², Gesamtfläche: 448,00 m², vermietbare Fläche: 388,00 m², Anzahl der Badezimmer: 3, Balkon-Terrassen-Fläche: 10,00 m², Anzahl der Wohneinheiten: 3, Anzahl der Gewerbeeinheiten: 1, Bundesland: Saarland, 4 Etagen, modernisiert: 2024
Anbieter der Immobilie
LBS Immobilien GmbH
Beethovenstraße 35-39, 66111 Saarbrücken

Online-ID: 2k3mk5n
Referenznummer: 2025-CG-00057
Finde Angebote wie dieses
Hier geht es zu unserem Impressum, den Allgemeinen Geschäftsbedingungen, den Hinweisen zum Datenschutz und nutzungsbasierter Online-Werbung.