

Maymar Real estate
Frau Yvette Boerner
003 ···
Nr. anzeigenPreise & Kosten
Provision für Käufer
provisionsfrei
Das Haus
Kategorie
Villa
Baujahr
2025
Details
Weitere Informationen
Neubauvillen
Neubauvillen in der Gemeinde Aspe.
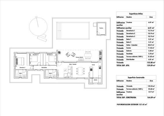
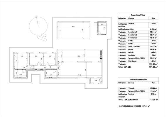
Neubauvillen mit verschiedenen Modellen zur Auswahl mit 2, 3 oder 4 Schlafzimmern, 1 oder 2 Etagen und in Plattenbauweise oder mit Struktur: Je nach Modell und gewähltem Grundstück wird der genaue Preis berechnet.
Alle Villen werden auf rustikalen Grundstücken...
Anbieter der Immobilie

Online-ID: 2k3qh55
Referenznummer: MN68ASPE101
Finde Angebote wie dieses
Hier geht es zu unserem Impressum, den Allgemeinen Geschäftsbedingungen, den Hinweisen zum Datenschutz und nutzungsbasierter Online-Werbung.