
Lars Pitan Immobilien Group GmbH
Herr Lars Pitan
036 ···
Nr. anzeigenPreise & Kosten
Provision für Käufer
5,95% des Kaufpreises
Lage
Arnstadt, eine Stadt im thüringischen Ilm-Kreis, ist eine der ältesten Städte Deutschlands und bekannt als "Tor zum Thüringer Wald". Erstmals 704 urkundlich erwähnt, besticht die Stadt durch ihre historische Altstadt mit gut erhaltenen Fachwerkhäusern, das barocke Schlossmuseum und die Bachkirche, in der Johann Sebastian Bach...
Das Haus
Kategorie
Mehrfamilienhaus
Baujahr
1913
Bezug
sofort
Energie & Heizung
Warum sehe ich diese Anzeige? – Du siehst diese Anzeige basierend auf Ihrer Navigation auf unserer Website und den Suchkriterien, die du verwendet hast.
Energieausweistyp
Verbrauchsausweis
Gebäudetyp
Wohngebäude
Effizienzklasse
G
Endenergieverbrauch
210,00 kWh/(m²·a)
Weitere Energiedaten
Energieträger
Gas
Heizungsart
Zentralheizung
Details
Objektbeschreibung
Attraktives Mehrfamilienhaus mit 5 Wohneinheiten - solide Kapitalanlage in guter LageZum Verkauf steht ein gepflegtes Mehrfamilienhaus mit insgesamt fünf gut geschnittenen Wohneinheiten in Arnstadt. Das Objekt ist aktuell voll vermietet und bietet sowohl Eigennutzern als auch Kapitalanlegern hervorragende Möglichkeiten und...
Ausstattung
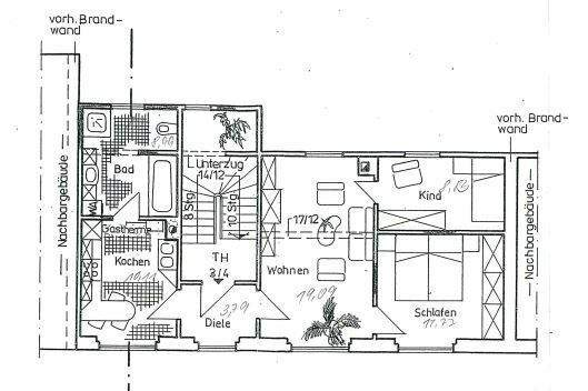
Mehrfamilienhaus mit 5 Wohnungen3 Dreiraumwohnungen á 60m²
1 Zweiraumwohnung á 40m²
1 Einraumwohnung á 20m²
Mieteinnahmen 19.980,00 Euro / Jahr2024 Erneuerung Heizungsanlage EG Kaufpreis: 260.000,00 Euro
Der Preis ist nicht verhandelbar.
Weitere Informationen
Stichworte
Sonstiges: Etagenheizung
Anbieter der Immobilie

Lars Pitan Immobilien Group GmbH
Erfurter Straße 32, 98693 Ilmenau
Online-ID: 2k3rf5l
Referenznummer: 5013
Finde Angebote wie dieses
Hier geht es zu unserem Impressum, den Allgemeinen Geschäftsbedingungen, den Hinweisen zum Datenschutz und nutzungsbasierter Online-Werbung.