
Inseriert auf 123provisionsfrei.de
Kerstin Baderke
+49 ···
Nr. anzeigenPreise & Kosten
Provision für Käufer
provisionsfrei
Lage
Baalsdorf ist ein Stadtteil im Osten von Leipzig, Deutschland. Er gehört zum Stadtbezirk Ost und ist
hauptsächlich eine Wohngegend. Baalsdorf zeichnet sich durch eine Mischung aus historischen
Gebäuden und neueren Wohnanlagen aus. Es gibt einige lokale Einrichtungen, wie Schulen und
Einkaufsmöglichkeiten, die die...
Das Haus
Kategorie
Einfamilienhaus
Baujahr
1986
Energie & Heizung
Warum sehe ich diese Anzeige? – Du siehst diese Anzeige basierend auf Ihrer Navigation auf unserer Website und den Suchkriterien, die du verwendet hast.
Energieausweistyp
Verbrauchsausweis
Gebäudetyp
Wohngebäude
Baujahr laut Energieausweis
1986
Wesentliche Energieträger
Gas
Gültigkeit
10.11.2024 bis 11.11.2034
Effizienzklasse
C
Endenergieverbrauch
99,55 kWh/(m²·a)
Weitere Energiedaten
Energieträger
Gas
Heizungsart
Zentralheizung
Details
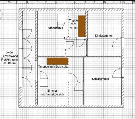
Objektbeschreibung
Wunderschönes Einfamilienhaus in Leipzig Baalsdorf - Ihr neues Zuhause!
Es ist ein freistehendes Einfamilienhaus in der begehrten, ruhiger Lage, auf gewachsenem Grundstück,
von Leipzig Baalsdorf. Dieses Haus bietet Ihnen auf großzügigen 4 Zimmern und zwei
zusätzlichen kleineren Räumen unter der Terrasse...
Ausstattung
Das Haus wurde bis ins Jahr 2023 modernisiert mit hochwertigen
Materialien .
Schüco Alu, Dreifachverglasung, außer Dachfenster
Fensterbänke Design-Granit
Wertige Innentüren
Eingangstür oben ist Alu
Formschöne freie Bolzen-Innen-Treppe aus Hartholz
Außen-Treppe Design-Granit...
Preisinformation
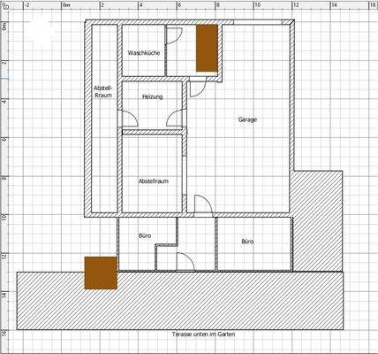
4 Stellplätze
1 Garagenstellplatz
Weitere Informationen
Sonstiges
Das untere Geschoss hat eine Geschosshöhe von ca. 199 cm, daher wird es als Nutzfläche berechnet.
Hier befindet sich die Garage und 2 kleinere Räume unter der Terrasse mit Gartenblick .
Die Garage ist sehr groß, es hat Platz für eine Werkbank, Räder e.t.c. und es sind noch ein weitere Räume vorhanden...
Anbieter der Immobilie
Inseriert auf 123provisionsfrei.de
Helmstedter Str. 16, 38448 Wolfsburg
Online-ID: 2k3rs5k
Referenznummer: tzUNaPmsF--3#RuxkW
Finde Angebote wie dieses
Hier geht es zu unserem Impressum, den Allgemeinen Geschäftsbedingungen, den Hinweisen zum Datenschutz und nutzungsbasierter Online-Werbung.