Immo Circle GesbR

Frau Anna Baranova

Moderne Bürofläche in begehrter Lage: Kalvarinbergstraße als Ihr neuer Geschäftsstandort

€ 635
Nettokaltmiete
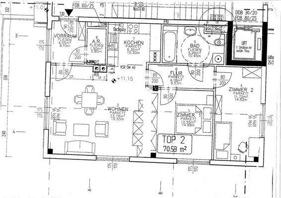
70,53 m²
Bürofläche ca.
k.A.
Teilbare Fläche
k.A.
Zimmer

Der Anbieter dieses Objekts hat gegenüber der AVIV Germany GmbH als Betreiber dieses Online-Marktplatzes erklärt, nicht als Unternehmer im Sinne des § 1 KSchG zu handeln. Die im Verbraucherschutzrecht der Union verankerten Verbraucherrechte (insbesondere Informationspflichten und Rücktritts- bzw. Widerrufsrechte) finden auf den Vertrag zwischen dem Anbieter des Objekts und Ihnen (dem Interessenten) keine Anwendung.

Gewerblicher Anbieter

Der Anbieter dieses Objekts hat gegenüber der AVIV Germany GmbH als Betreiber dieses Online-Marktplatzes erklärt, als Unternehmer im Sinne des § 1 KSchG zu handeln.

AdresseKalvarienbergstraße
8020 Graz 
(Lend)
Auf Karte ansehen

Preise & Kosten

Nettokaltmiete € 635 Betriebskosten € 202,85

Kaution

3 Bruttomonatsmieten

Provision für Mieter

3 Bruttomonatsmieten zzgl. 20% USt.

Lage

Die Kalvarienbergstraße liegt inmitten von Graz und bietet eine ausgezeichnete Erreichbarkeit. Diese zentrale Position erleichtert nicht nur den Zugang zu verschiedenen Teilen der Stadt, sondern macht die Adresse auch für Geschäfte und Büros äußerst attraktiv.
Die gute Anbindung an das öffentliche Verkehrsnetz macht es...

Mehr anzeigen

Büro-/Praxisfläche

Baujahr

2000

Bezug

ab sofort

  • Böden: Fliesenboden, Parkett
  • Teeküche
  • voll klimatisiert
  • Neubau
  • Personenaufzug

Energie & Heizung

Heizwärmebedarf (HWB)

D

117,00 kWh/(m²·a)

Gesamtenergieeffizienz (fGEE)

C

1,46

Weitere Energiedaten

Energieträger

Fernwärme

Details

Objektbeschreibung

-------------------------

Attraktives Büro in Graz: Effiziente Raumaufteilung, Klimaanlagen und Parkplatz inklusive!

 

Willkommen in Ihrem neuen Büro in der Kalvarienbergstraße, Graz - einer perfekten Umgebung für produktives Arbeiten und geschäftlichen...

Mehr anzeigen

Preisinformation


Heizung Direktverrechnung
1 PP im Preis inkludiert
Alle Preise sind zzgl. MWST., Nettokaltmiete: 635,00 EUR

Weitere Informationen

Stichworte
Stellplatz vorhanden, Anzahl der Badezimmer: 1, Anzahl der separaten WCs: 2, Bundesland: Steiermark

Sonstiges: EDV-Verkabelung

Anbieter der Immobilie

Partner

Immo Circle GesbR

Neubaugasse 107, 8020 GRAZ

user

Frau Anna Baranova

Dein Ansprechpartner

Anbieter-Website Anbieter-Impressum

Online-ID: 2k48l56

Referenznummer: OBGC2025042410113578029b9a7b663

Finde Angebote wie dieses

imageimageimage

Hier geht es zu unserem Impressum, den Allgemeinen Geschäftsbedingungen, den Hinweisen zum Datenschutz und nutzungsbasierter Online-Werbung.