

Drinda Immorent GmbH
Herr Michael Feser
+49 ···
Nr. anzeigenPreise & Kosten
Kaution
3 Bruttomonatsmieten
Provision für Mieter
provisionsfrei
Warum sehe ich diese Anzeige? – Du siehst diese Anzeige basierend auf Ihrer Navigation auf unserer Website und den Suchkriterien, die du verwendet hast.
Lage
Lagebeschreibung
Der Dirnda Business Park befindet sich im Süden der Stadt Nürnberg, im Stadtteil Gibitzenhof.
Die Verkehrsanbindung ist hervorragend: Die A73 Südwesttangente/Autobahnzubringer liegt nur etwa 1,5 km entfernt, wodurch das Nürnberger Autobahnkreuz "Ost" (A6/A9) schnell erreichbar ist. Das...
Büro-/Praxisfläche
Kategorie
Bürofläche
Bezug
ab sofort
Derzeitige Nutzung
frei
Energie & Heizung
Warum sehe ich diese Anzeige? – Du siehst diese Anzeige basierend auf Ihrer Navigation auf unserer Website und den Suchkriterien, die du verwendet hast.
Weitere Energiedaten
Heizungsart
Zentralheizung
Details
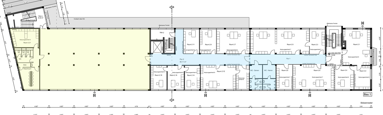
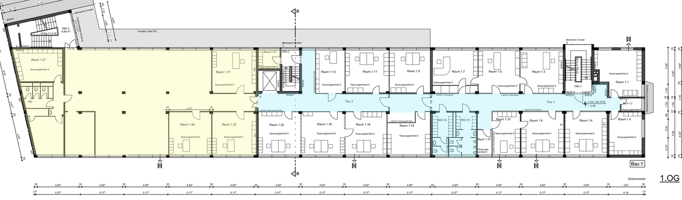
Objektbeschreibung
Entdecken Sie Ihre neue Bürofläche im renommierten Dirnda Business Park in Nürnberg!
Diese beeindruckende Bürofläche von 367,67 m² bietet Ihnen nicht nur ausreichend Platz für Ihr Team, sondern auch eine erstklassige Lage und hervorragende Anbindung an alle wichtigen Verkehrsknotenpunkte.
Räumlichkeiten und...
Weitere Informationen
Sonstiges
Für weitere Informationen oder zur Vereinbarung eines Besichtigungstermins stehen wir Ihnen gerne zur Verfügung.
Stichworte
Stellplatz vorhanden, Gesamtfläche: 367,67 m², Bundesland: Bayern
Zustand: neuwertig, saniert
Sonstiges: EDV-Verkabelung, Getrennte Damen- und Herren-WCs
Anbieter der Immobilie
Drinda Immorent GmbH
Nimrodstr. 10, 90441 Nürnberg

Online-ID: 2k4al55
Referenznummer: Büro 750,50 qm Bau1 OG-1 und OG 2
Finde Angebote wie dieses
Hier geht es zu unserem Impressum, den Allgemeinen Geschäftsbedingungen, den Hinweisen zum Datenschutz und nutzungsbasierter Online-Werbung.