

CENTURY 21 Golden time Immobilien
Herr Paul Schewtschenko
086 ···
Nr. anzeigenPreise & Kosten
Provision für Käufer
3.57% inkl. MwSt.
Die Käuferprovision beträgt 3,57 % des Kaufpreises inkl. 19% MwSt.
Lage
St.?Georgen (PLZ 83368) ist ein Ortsteil der Stadt Traunreut im oberbayerischen Landkreis Traunstein. Der Ort liegt auf einem Moränenhügel über dem Tal der Traun im Chiemgauer Alpenvorland. Der historische Ortskern mit der Pfarrkirche St.?Georgen prägt das Dorfbild. Unten im Tal befinden sich moderne Wohnsiedlungen und...
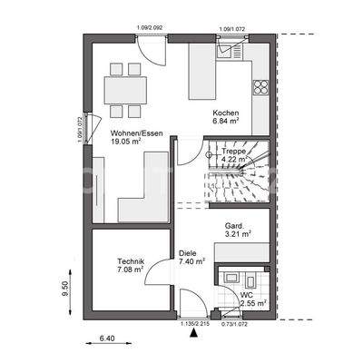
Die Immobilie
Zu diesem Angebot wurden vom Anbieter keine weiteren Daten hinterlegt. Für weitere Informationen bitte den Anbieter kontaktieren.
Nach Informationen fragenDetails
Objektbeschreibung
Das projektierte Doppelhaus inklusive Grundstück ist ab 659.000?€ erhältlich.
Dieses Angebot umfasst das Grundstück, das direkt von uns verkauft wird, sowie das projektiere Doppelhaus mit zwei Doppelhaushälften in Kooperation mit Schwabenhaus.
Der Grundstückspreis ist fest und bleibt unverändert.
Die Kosten für...
Ausstattung
Ausstattung
.Natürliche Materialien: Hochwertige, gesunde und natürliche Baustoffe schaffen eine warme und einladende Atmosphäre.
.Lichtdurchflutete Räume: Große Fensterflächen sorgen für eine optimale Nutzung von natürlichem Licht und schaffen eine offene, luftige Umgebung.
.Durchdachte Raumgestaltung: Die klare und...
Anbieter der Immobilie

Online-ID: 2k4bj5r
Referenznummer: C21_PASC_44163
Finde Angebote wie dieses
Hier geht es zu unserem Impressum, den Allgemeinen Geschäftsbedingungen, den Hinweisen zum Datenschutz und nutzungsbasierter Online-Werbung.