
Kehrt Immo GmbH
Frau Christine Schäfer
063 ···
Nr. anzeigenPreise & Kosten
Provision für Käufer
1,5 zzgl. MwSt.
Lage
Der moderne Bürokomplex befindet sich in zentraler Lage der Landeshauptstadt Saarbrücken in der Mainzer Straße. Diese attraktive Lage zeichnet sich durch eine hervorragende Verkehrsanbindung aus. Direkt vor dem Gebäude befindet sich eine Straßenbahnhaltestelle, die eine optimale Anbindung an den öffentlichen Nahverkehr...
Büro-/Praxisfläche
Kategorie
Bürogebäude
Baujahr
1992
Bezug
sofort
Derzeitige Nutzung
vermietet
Energie & Heizung
Warum sehe ich diese Anzeige? – Du siehst diese Anzeige basierend auf Ihrer Navigation auf unserer Website und den Suchkriterien, die du verwendet hast.
Wärme
Energieausweistyp
Verbrauchsausweis
Gebäudetyp
Nicht-Wohngebäude
Baujahr laut Energieausweis
1992
Wesentliche Energieträger
Gas
Gültigkeit
07.12.2018 bis 06.12.2028
Endenergieverbrauch (Wärme)
71,00 kWh/(m²·a)
Weitere Energiedaten
Energieträger
Gas
Heizungsart
Zentralheizung
Details
Objektbeschreibung
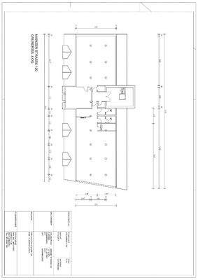
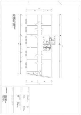
Bei dem angebotenen Bürokomplex handelt es sich um eine hochwertige und gepflegte Gewerbeimmobilie in attraktiver Lage von Saarbrücken. Das Gebäude verfügt über eine Gesamtmietfläche von ca. 1.515 m², die sich auf vier Etagen verteilt. Aufgeteilt in sechs Mieteinheiten zu 170 (Laufzeit 04.2026), 225 (Laufzeit ab 12.2025...
Ausstattung
- 6 Mieteinheiten
- Fahrstuhl
- überdachte und beleuchtete Parkmöglichkeiten zum anmieten mit direktem Zugang zum Treppenhaus/Fahrstuhl
- Fernwärme
- Verträge mit Hausverwaltung, Hausmeisterservice, Putzfirma usw. zu absoluten Top-Konditionen
- Moderne und sanierte Außenfassade
- Klimaanlage im kompletten...
Preisinformation
Ist-Mieteinnahmen pro Jahr: 198.500,00 EUR
Weitere Informationen
Sonstiges
Der gepflegte Bürokomplex präsentiert sich als nachhaltiges Investment in zentraler Lage von Saarbrücken. Mit einem aktuellen Vermietungsstand von rund 100% bietet das Objekt eine stabile und verlässliche Einnahmequelle. Die bestehenden Mietverträge mit Laufzeiten von 3 bis 10 Jahren - teils ergänzt um...
Dokumente
Anbieter der Immobilie
Online-ID: 2k4d55m
Referenznummer: 218898
Finde Angebote wie dieses
Hier geht es zu unserem Impressum, den Allgemeinen Geschäftsbedingungen, den Hinweisen zum Datenschutz und nutzungsbasierter Online-Werbung.