KBS-Bau GmbH

Herrn Reinhold Noel

Nutzen Sie die Sonderafa von 5% - 3 Zi.-Neubauwohnungen in KfW QNG 40

€ 395.000
Kaufpreis
75 m²
Wohnfläche ca.
3
Zimmer

Der Anbieter dieses Objekts hat gegenüber der AVIV Germany GmbH als Betreiber dieses Online-Marktplatzes erklärt, nicht als Unternehmer im Sinne des § 1 KSchG zu handeln. Die im Verbraucherschutzrecht der Union verankerten Verbraucherrechte (insbesondere Informationspflichten und Rücktritts- bzw. Widerrufsrechte) finden auf den Vertrag zwischen dem Anbieter des Objekts und Ihnen (dem Interessenten) keine Anwendung.

Provisionsfrei
Gewerblicher Anbieter

Der Anbieter dieses Objekts hat gegenüber der AVIV Germany GmbH als Betreiber dieses Online-Marktplatzes erklärt, als Unternehmer im Sinne des § 1 KSchG zu handeln.

AdresseSchrennenweg 3
79189 Bad Krozingen 
(Tunsel)
Auf Karte ansehen

Preise & Kosten

Kaufpreis € 395.000 1 Stellplatz € 5.000

Provision für Käufer

provisionsfrei

Abschreibung/Anlage

als Kapitalanlage geeignet

Lage

Im Herz des südlichen Breisgaus schlägt in Bad Krozingen mit seinen Stadtteilen. Tunsel ist ein Dorf mit knapp 2000 Einwohnern und gehört seit 1974 zu Bad Krozingen. Aus dem klassischen Kurort von einst ist heute eine Stadt gewachsen, die Akutmedizin, Rehabilitation und Gesundheitsvorsorge mit qualifizierten Arbeitsplätzen in...

Mehr anzeigen

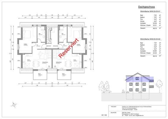
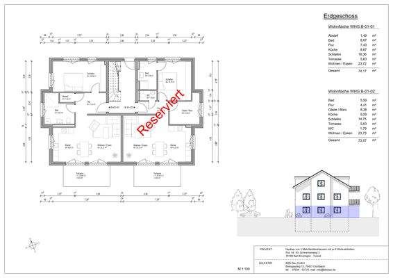
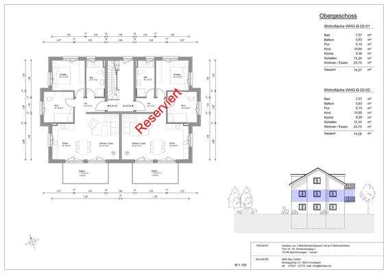
Die Wohnung

Wohnungslage

2. Geschoss

Bezug

2026

Derzeitige Nutzung

frei

  • Bad mit Fenster und Dusche
  • Balkon, Garten, Terrasse
  • Böden: Fliesenboden, Parkett
  • Fenster: Kunststofffenster
  • kontrollierte Be- und Entlüftungsanlage
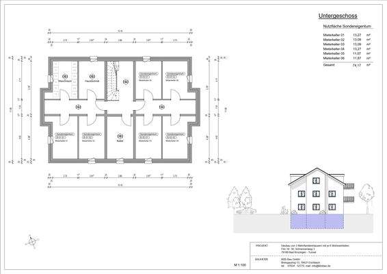
  • Weitere Räume: Kelleranteil, Abstellraum, Wasch-Trockenraum
  • Anschlüsse: DSL-Anschluss, Kabelanschluss

Wohnanlage

  • Baujahr: 2025
  • Zustand: Neubau
  • 1 Stellplatz

Energie & Heizung

A+
A
B
C
D
E
F
G
H
0 25 50 75 100 125 150 175 200 225 250 +

Energieausweistyp

Bedarfsausweis

Gebäudetyp

Wohngebäude

Baujahr laut Energieausweis

2025

Wesentliche Energieträger

Strom

Gültigkeit

04.04.2025 bis 04.04.2035

Effizienzklasse

A+

Endenergiebedarf

14,00 kWh/(m²·a)

Weitere Energiedaten

Energieträger

Elektro

Haustyp

KfW 40

Heizungsart

Fußbodenheizung, Luft-/Wasser-Wärmepumpe

Details

Objektbeschreibung

Objektbeschreibung
Nachhaltig investieren oder modern wohnen – Ihr neues Zuhause im KfW 40 QNG-Standard.

In attraktiver Wohnlage entsteht ein hochwertiges Mehrfamilienhaus mit 6 Wohneinheiten, realisiert nach dem KfW-Effizienzhaus 40 Standard mit QNG-Zertifizierung. Hier verbinden sich zeitgemäßes Wohnen...

Mehr anzeigen

Weitere Informationen

Besichtigungstermine
Individuelle Beratung – noch vor Baubeginn

Da es sich um ein projektiertes Neubauvorhaben handelt, sind aktuell noch keine Besichtigungen vor Ort möglich.
Gerne laden wir Sie jedoch zu einem individuellen Beratungstermin ein, bei dem wir Ihnen die Grundrisse, Ausstattungsdetails und...

Mehr anzeigen

Anbieter der Immobilie

Partner

KBS-Bau GmbH

Breisgauring 13, 79427 Eschbach

user

Herrn Reinhold Noel

Dein Ansprechpartner

Anbieter-Website Anbieter-Profil Anbieter-Impressum

Online-ID: 2k4k255

Finde Angebote wie dieses

imageimageimage

Hier geht es zu unserem Impressum, den Allgemeinen Geschäftsbedingungen, den Hinweisen zum Datenschutz und nutzungsbasierter Online-Werbung.